G

R

E

E

N

E

SCHEMA TECNICO E CALCOLO DELLE ALTEZZE

Con il termine “trave” si intende l’insieme dei componenti che formano il meccanismo di scorrimento.

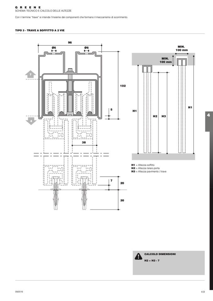
TIPO 3 - TRAVE A SOFFITTO A 2 VIE

96

Ø6

Ø6

MIN.

100 mm

MIN.

100 mm

7

4

102

5

H1

38

H2

H3

H1

H1 = Altezza soffitto

H2 = Altezza telaio porta

H3 = Altezza pavimento / trave

7

20

30

CALCOLO DIMENSIONI

H2 = H3 - 7

09/2016

4.9

4