20

100

H3

38

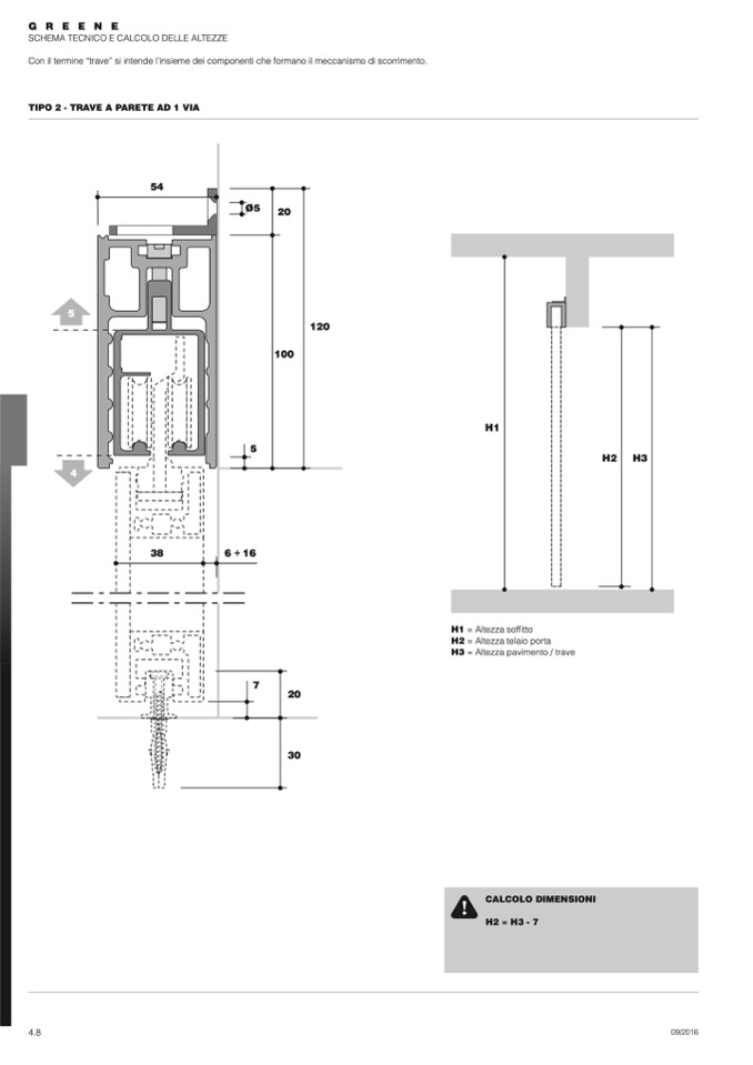
CALCOLO DIMENSIONI

H2 = H3 - 7

G

R

E

E

N

E

SCHEMA TECNICO E CALCOLO DELLE ALTEZZE

Con il termine “trave” si intende l’insieme dei componenti che formano il meccanismo di scorrimento.

TIPO 2 - TRAVE A PARETE AD 1 VIA

54

5

6 ÷ 16

H2

Ø5

5

4

120

H1

H1 = Altezza soffitto

H2 = Altezza telaio porta

H3 = Altezza pavimento / trave

7

20

30

4.8

09/2016