78

H2

H3

38

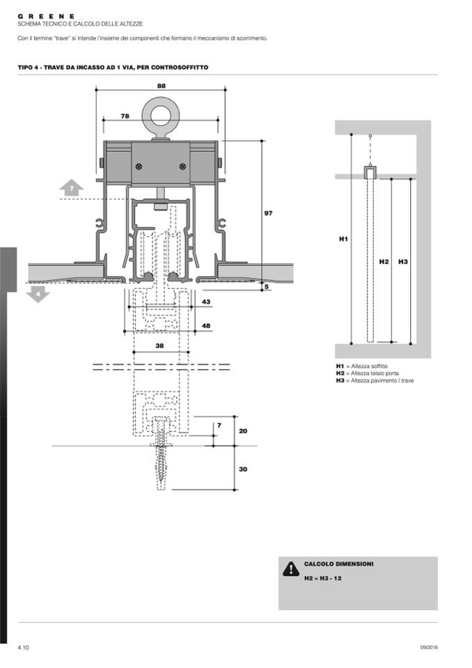
CALCOLO DIMENSIONI

H2 = H3 - 12

G

R

E

E

N

E

SCHEMA TECNICO E CALCOLO DELLE ALTEZZE

Con il termine “trave” si intende l’insieme dei componenti che formano il meccanismo di scorrimento.

TIPO 4 - TRAVE DA INCASSO AD 1 VIA, PER CONTROSOFFITTO

88

7

97

5

H1

4

43

48

H1 = Altezza soffitto

H2 = Altezza telaio porta

H3 = Altezza pavimento / trave

7

20

30

4.10

09/2016