G

R

E

E

N

E

SCHEMA TECNICO E CALCOLO DELLE ALTEZZE

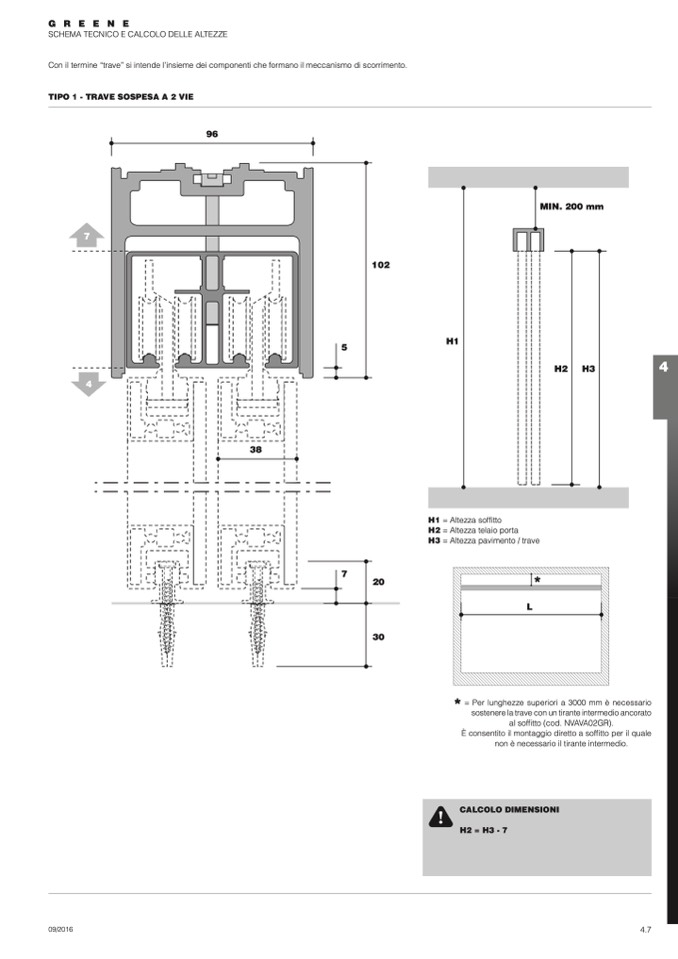
Con il termine “trave” si intende l’insieme dei componenti che formano il meccanismo di scorrimento.

TIPO 1 - TRAVE SOSPESA A 2 VIE

96

MIN. 200 mm

7

4

102

5

H1

H2

09/2016

4.7

38

7

20

30

H1 = Altezza soffitto

H2 = Altezza telaio porta

H3 = Altezza pavimento / trave

*

L

*

= Per lunghezze superiori a 3000 mm è necessario

sostenere la trave con un tirante intermedio ancorato

al soffitto (cod. NVAVA02GR).

È consentito il montaggio diretto a soffitto per il quale

non è necessario il tirante intermedio.

H3

CALCOLO DIMENSIONI

H2 = H3 - 7

4