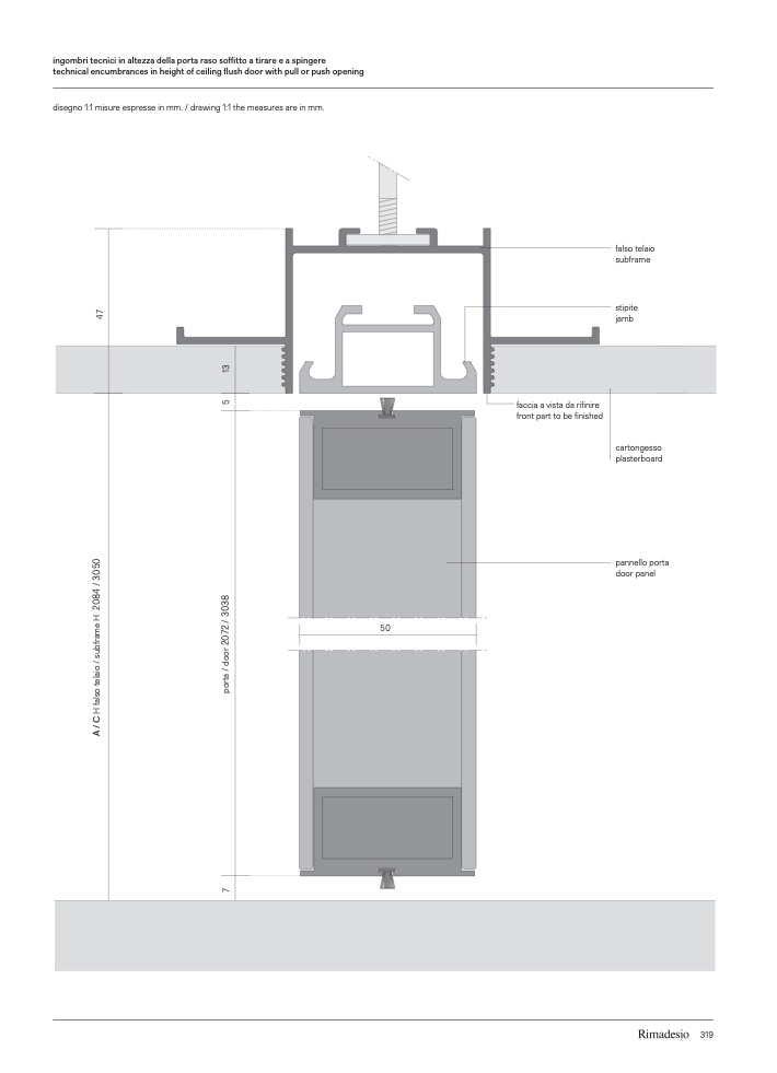
ingombri tecnici in altezza della porta raso soffitto a tirare e a spingere

technical encumbrances in height of ceiling flush door with pull or push opening

disegno 1:1 misure espresse in mm. / drawing 1:1 the measures are in mm.

faccia a vista da rifinire

front part to be finished

falso telaio

subframe

stipite

jamb

cartongesso

plasterboard

pannello porta

door panel

50

319

A

/

C

H

f

a

l

s

o

t

e

l

a

i

o

/

s

u

b

f

r

a

m

e

H

2

0

8

4

/

3

0

5

0

4

7

7

p

o

r

t

a

/

d

o

o

r

2

0

7

2

/

3

0

3

8

5

1

3

1

3