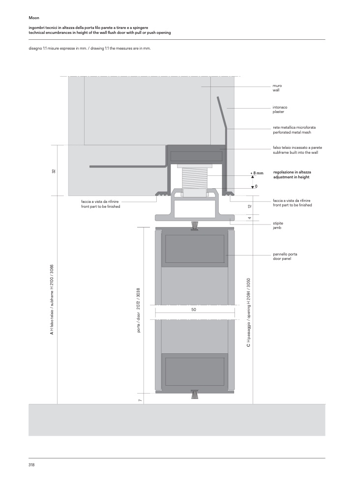
Moon

ingombri tecnici in altezza della porta filo parete a tirare e a spingere

technical encumbrances in height of the wall

flush door with pull or push opening

disegno 1:1 misure espresse in mm. / drawing 1:1 the measures are in mm.

+8mm

0

muro

wall

intonaco

plaster

rete metallica microforata

perforated metal mesh

falso telaio incassato a parete

subframe built into the wall

regolazione in altezza

adjustment in height

faccia a vista da rifinire

front part to be finished

stipite

jamb

pannello porta

door panel

faccia a vista da rifinire

front part to be finished

50

318

7

p

o

r

t

a

/

d

o

o

r

2

0

7

2

/

3

0

3

8

A

H

f

a

l

s

o

t

e

l

a

i

o

/

s

u

b

f

r

a

m

e

H

2

1

0

0

/

3

0

6

6

3

2

C

H

p

a

s

s

a

g

g

i

o

/

o

p

e

n

i

n

g

H

2

0

8

4

/

3

0

5

0

4

1

2