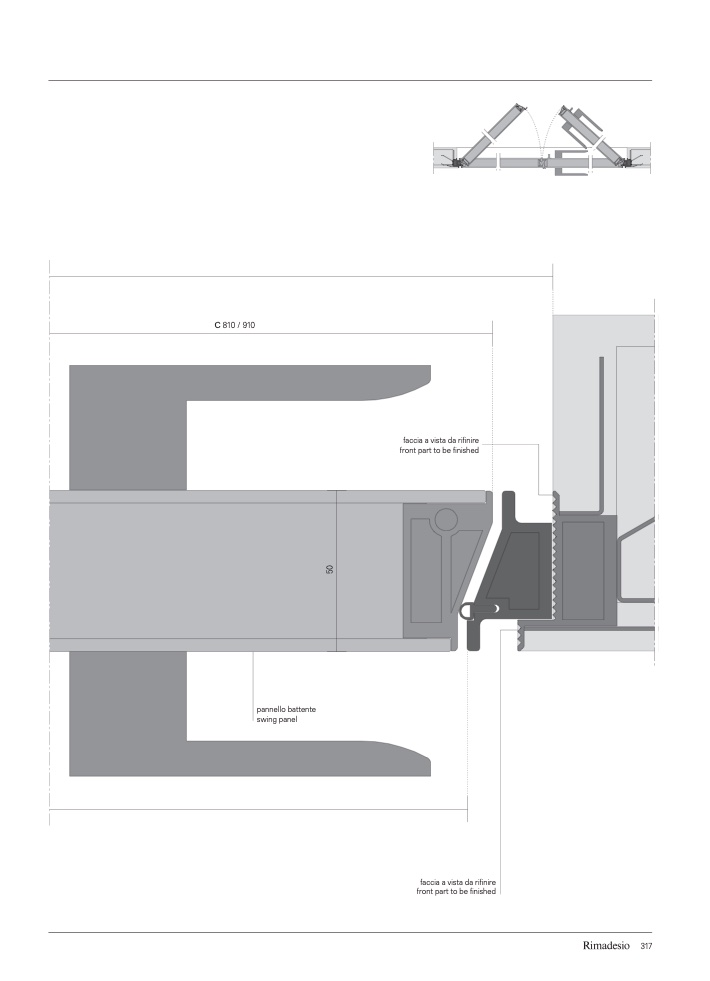
C810/910

faccia a vista da rifinire

front part to be finished

pannello battente

swing panel

faccia a vista da rifinire

front part to be finished

317

5

0