Moon

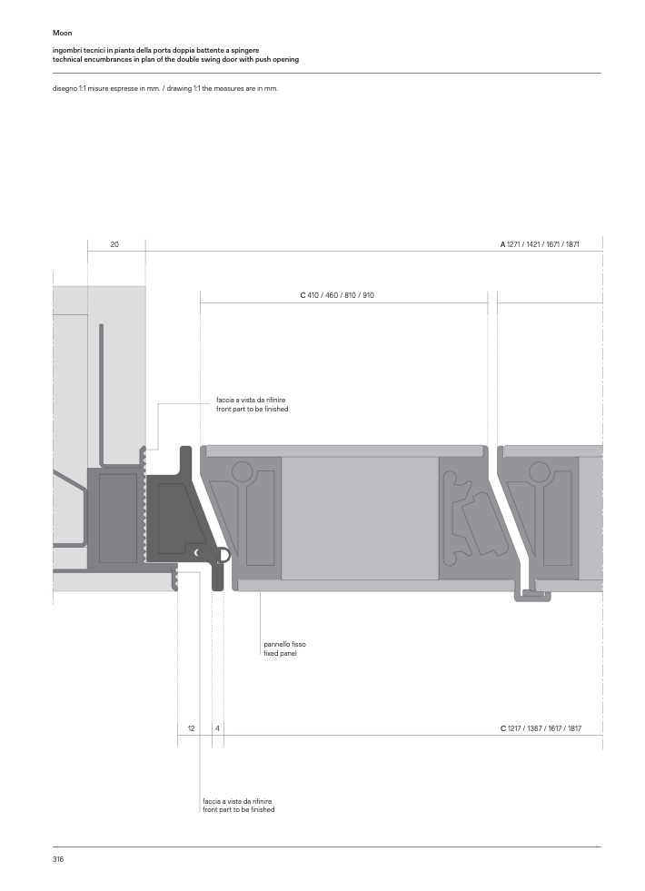
ingombri tecnici in pianta della porta doppia battente a spingere

technical encumbrances in plan of the double swing door with push opening

disegno 1:1 misure espresse in mm. / drawing 1:1 the measures are in mm.

20

A1271/1421/1671/1871

faccia a vista da rifinire

front part to be finished

316

C410/460/810/910

faccia a vista da rifinire

front part to be finished

pannello fisso

fixed panel

4

C1217/1367/1617/1817

12