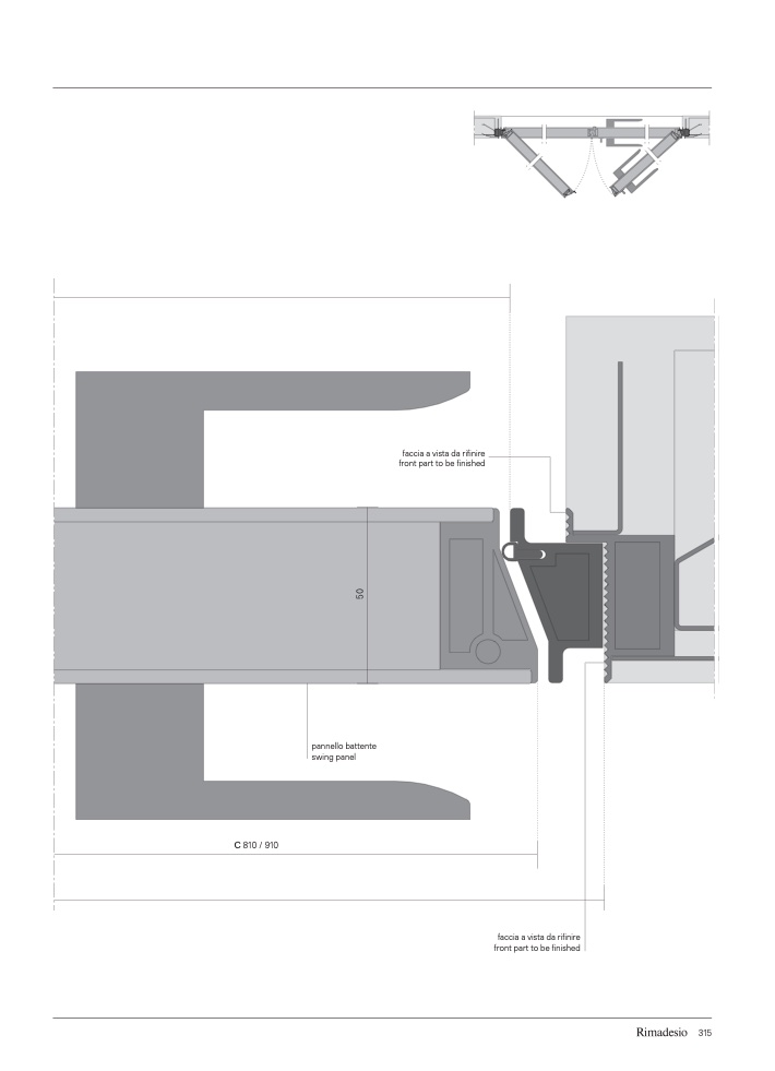
faccia a vista da rifinire

front part to be finished

5

0

pannello battente

swing panel

C810/910

faccia a vista da rifinire

front part to be finished

315