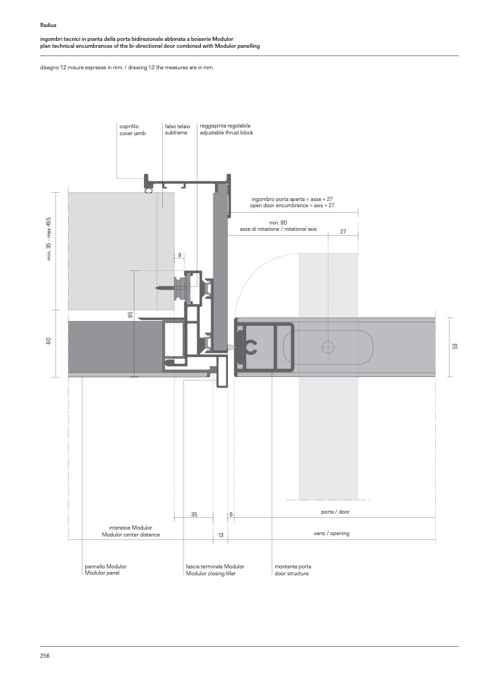
Radius

ingombri tecnici in pianta della porta bidirezionale abbinata a boiserie Modulor

plan technical encumbrances of the bi-directional door combined with Modulor panelling

disegno 1:2 misure espresse in mm. / drawing 1:2 the measures are in mm.

coprifilo

cover jamb

falso telaio

subframe

reggispinta regolabile

adjustable thrust block

ingombro porta aperta = asse + 27

open door encumbrance = axis + 27

min. 90

asse di rotazione / rotational axis

27

9

35

porta / door

interasse Modulor

Modulor center distance

13

vano / opening

pannello Modulor

Modulor panel

6

fascia terminale Modulor

Modulor closing filler

montante porta

door structure

256

5

3

6

0

m

i

n

.

3

5

-

m

a

x

4

5

5

9

5