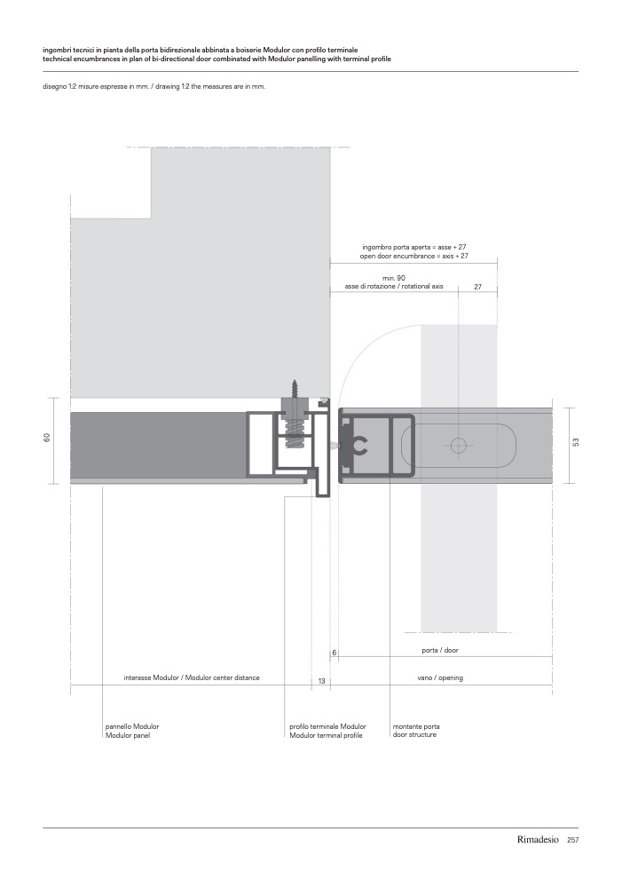
ingombri tecnici in pianta della porta bidirezionale abbinata a boiserie Modulor con profilo terminale

technical encumbrances in plan of bi-directional door combinated with Modulor panelling with terminal profile

disegno 1:2 misure espresse in mm. / drawing 1:2 the measures are in mm.

ingombro porta aperta = asse + 27

open door encumbrance = axis + 27

min. 90

asse di rotazione / rotational axis

27

interasse Modulor / Modulor center distance

13

6

porta / door

vano / opening

pannello Modulor

Modulor panel

profilo terminale Modulor

montante porta

Modulor terminal profile

door structure

257

5

3

6

0