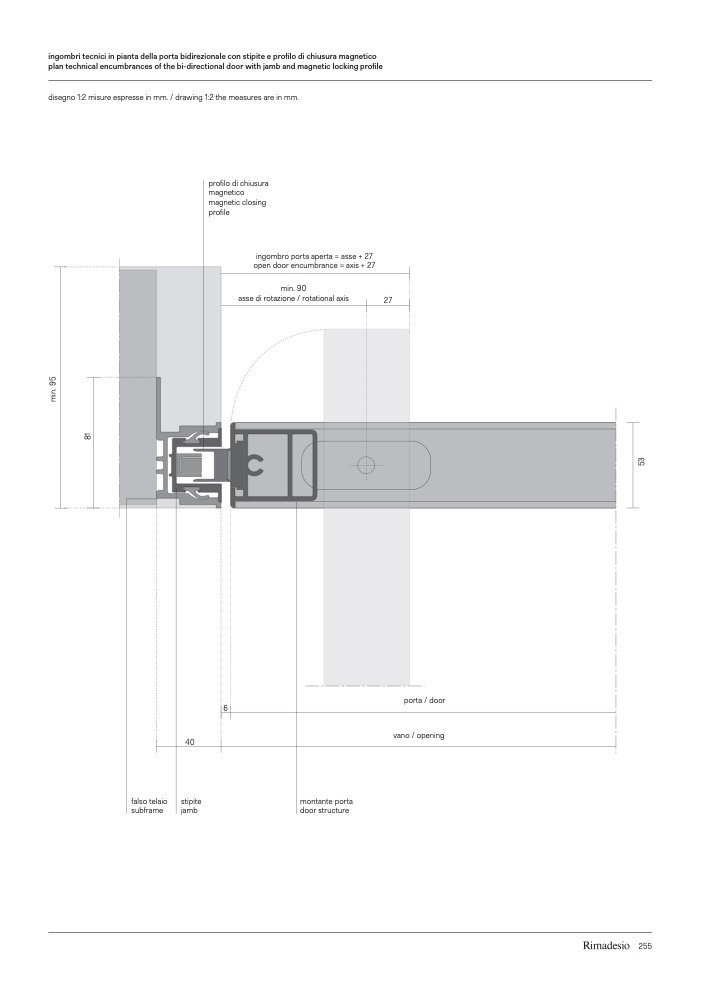
ingombri tecnici in pianta della porta bidirezionale con stipite e profilo di chiusura magnetico

plan technical encumbrances of the bi-directional door with jamb and magnetic locking profile

disegno 1:2 misure espresse in mm. / drawing 1:2 the measures are in mm.

profilo di chiusura

magnetico

magnetic closing

profile

ingombro porta aperta = asse + 27

open door encumbrance = axis + 27

min. 90

asse di rotazione / rotational axis

27

porta / door

6

vano / opening

40

falso telaio

stipite

subframe

jamb

montante porta

door structure

255

5

3

8

1

m

i

n

.

9

5