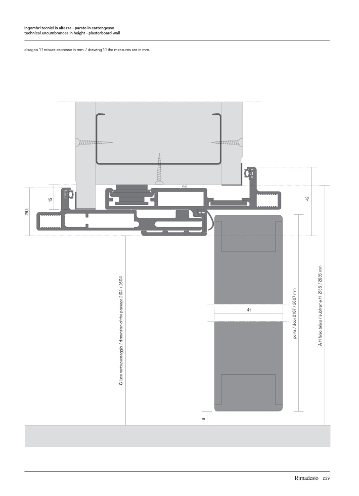
ingombri tecnici in altezza - parete in cartongesso

technical encumbrances in height - plasterboard wall

disegno 1:1 misure espresse in mm. / drawing 1:1 the measures are in mm.

41

239

9

C

l

u

c

e

n

e

t

t

a

p

a

s

s

a

g

g

i

o

/

d

i

m

e

n

s

i

o

n

o

f

t

h

e

p

a

s

s

a

g

e

2

1

0

4

/

2

6

0

4

p

o

r

t

a

/

d

o

o

r

2

1

0

7

/

2

6

0

7

m

m

A

H

f

a

l

s

o

t

e

l

a

i

o

/

s

u

b

f

r

a

m

e

H

2

1

3

5

/

2

6

3

5

m

m

2

9

,

5

1

5

4

2

2