Link+ slim

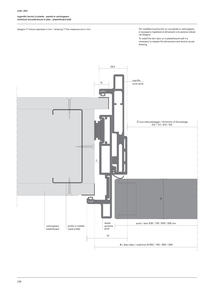
ingombri tecnici in pianta - parete in cartongesso

technical encumbrances in plan - plasterboard wall

disegno 1:1 misure espresse in mm. / drawing 1:1 the measures are in mm.

Per installare la porta slim su una parete in cartongesso,

è necessario rispettare le dimensioni e la sezione indicati

nel disegno.

To install the slim door on a plasterboard wall it is

necessary to respect the dimensions and section as per

drawing.

coprifilo

cover jamb

C luce netta passaggio / dimension of the passage

612/712/812/912

29,5

15

5

cartongesso

plasterboard

profilo in metallo

metal profile

stipite

portante

jamb

42

porta / door 636 / 736 / 836 / 936 mm

ALfalsotelaio/subframeW680/780/880/980

238

4

1