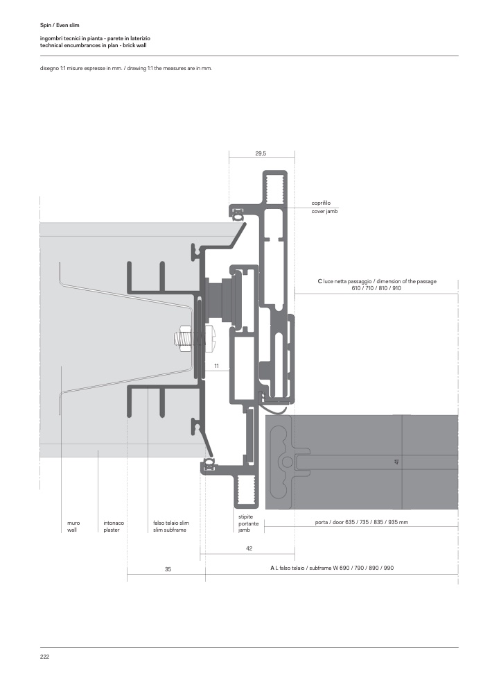
Spin / Even slim

ingombri tecnici in pianta - parete in laterizio

technical encumbrances in plan - brick wall

disegno 1:1 misure espresse in mm. / drawing 1:1 the measures are in mm.

29,5

coprifilo

cover jamb

C luce netta passaggio / dimension of the passage

610/710/810/910

11

falso telaio slim

slim subframe

35

porta/door635/735/835/935mm

ALfalsotelaio/subframeW690/790/890/990

muro

intonaco

wall

plaster

stipite

portante

jamb

42

222

4

1