ingombri tecnici in altezza

technical encumbrances in height

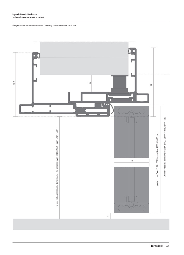
disegno 1:1 misure espresse in mm. / drawing 1:1 the measures are in mm.

41

221

7

C

l

u

c

e

n

e

t

t

a

p

a

s

s

a

g

g

i

o

/

d

i

m

e

n

s

i

o

n

o

f

t

h

e

p

a

s

s

a

g

e

E

v

e

n

2

1

0

1

/

2

6

0

1

-

S

p

i

n

2

1

0

1

/

3

0

0

1

p

o

r

t

a

/

d

o

o

r

E

v

e

n

2

1

0

5

/

2

6

0

5

m

m

-

S

p

i

n

2

1

0

5

/

3

0

0

5

m

m

A

H

f

a

l

s

o

t

e

l

a

i

o

/

s

u

b

f

r

a

m

e

H

E

v

e

n

2

1

5

0

/

2

6

5

0

-

S

p

i

n

2

1

5

0

/

3

0

5

0

7

6

,

5

8

2

2

0