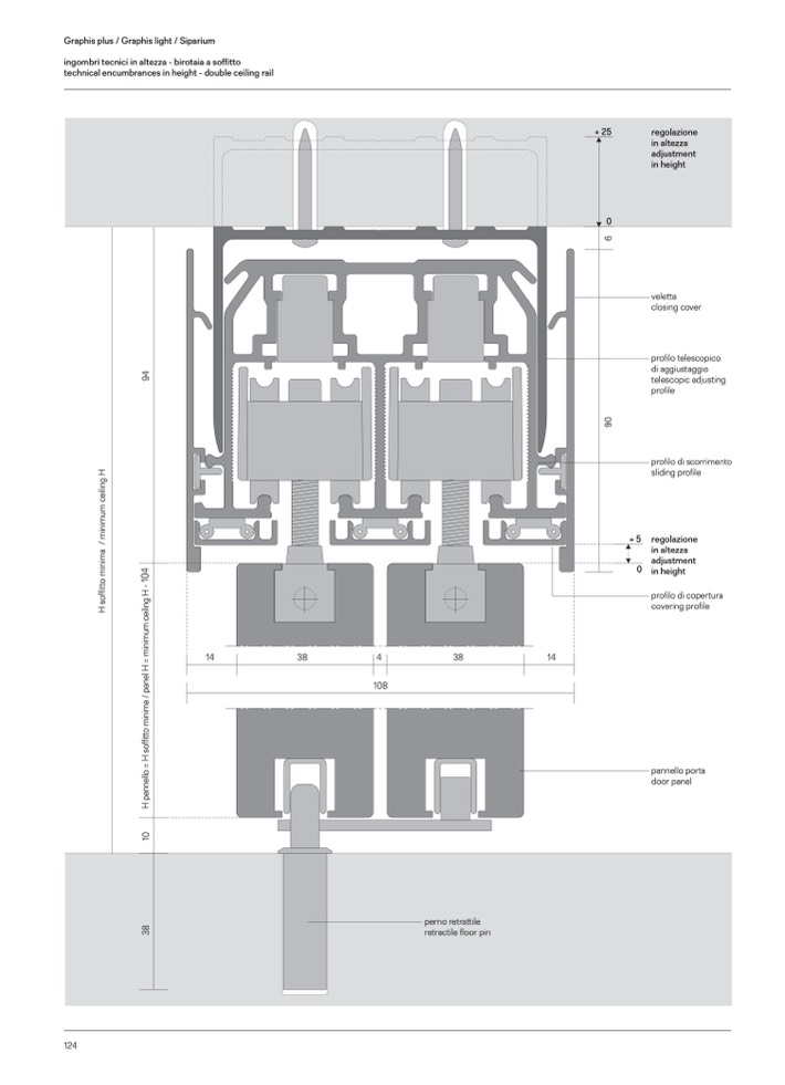
Graphis plus / Graphis light / Siparium

ingombri tecnici in altezza - birotaia a soffitto

technical encumbrances in height - double ceiling rail

+ 25

regolazione

in altezza

0

adjustment

in height

+ 5

0

veletta

closing cover

profilo telescopico

di aggiustaggio

telescopic adjusting

profile

profilo di scorrimento

sliding profile

regolazione

in altezza

adjustment

in height

profilo di copertura

covering profile

pannello porta

door panel

14

14

38

4

38

108

124

perno retrattile

retractile floor pin

3

8

1

0

H

p

a

n

n

e

l

l

o

=

H

s

o

f

f

i

t

t

o

m

i

n

i

m

a

/

p

a

n

e

l

H

=

m

i

n

i

m

u

m

c

e

i

l

i

n

g

H

-

1

0

4

9

4

H

s

o

f

f

i

t

t

o

m

i

n

i

m

a

/

m

i

n

i

m

u

m

c

e

i

l

i

n

g

H

9

0

6