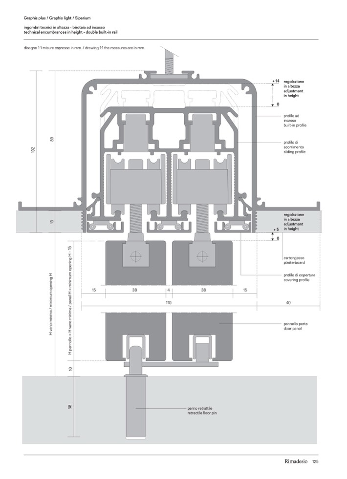
Graphis plus / Graphis light / Siparium

ingombri tecnici in altezza - birotaia ad incasso

technical encumbrances in height - double built-in rail

disegno 1:1 misure espresse in mm. / drawing 1:1 the measures are in mm.

+ 14

0

regolazione

in altezza

adjustment

in height

profilo ad

incasso

built-in profile

profilo di

scorrimento

sliding profile

regolazione

in altezza

adjustment

+ 5 in height

0

40

15

15

perno retrattile

retractile floor pin

cartongesso

plasterboard

profilo di copertura

covering profile

38

4

38

110

pannello porta

door panel

125

H

v

a

n

o

m

i

n

i

m

a

/

m

i

n

i

m

u

m

o

p

e

n

i

n

g

H

1

3

8

9

3

8

1

0

H

p

a

n

n

e

l

l

o

=

H

v

a

n

o

m

i

n

i

m

a

/

p

a

n

e

l

H

=

m

i

n

i

m

u

m

o

p

e

n

i

n

g

H

-

1

5

1

0

2