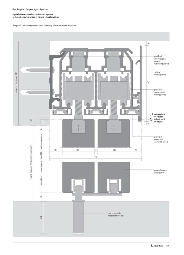
Graphis plus / Graphis light / Siparium

ingombri tecnici in altezza - birotaia a parete

technical encumbrances in height - double wall rail

disegno 1:1 misure espresse in mm. / drawing 1:1 the measures are in mm.

profilo di

ancoraggio a

parete

wall fixing profile

veletta

closing cover

profilo di

scorrimento

sliding profile

+5 regolazione

in altezza

adjustment

0

in height

profilo di

copertura

covering profile

pannello porta

door panel

16

14

38

4

38

110

perno retrattile

retractile floor pin

123

H

v

a

n

o

m

a

s

s

i

m

a

/

m

a

x

i

m

u

m

o

p

e

n

i

n

g

H

1

2

3

8

1

0

H

p

a

n

n

e

l

l

o

=

H

v

a

n

o

m

a

s

s

i

m

a

/

p

a

n

e

l

H

=

m

a

x

i

m

u

m

o

p

e

n

i

n

g

H

-

3

7

m

i

n

i

m

o

/

m

i

n

i

m

u

m

1

0

0

4

9

0

6