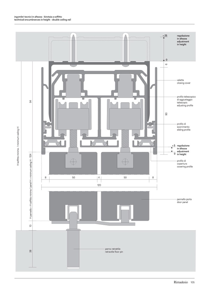
ingombri tecnici in altezza - birotaia a soffitto

technical encumbrances in height - double ceiling rail

+ 25

regolazione

in altezza

0

adjustment

in height

+ 5

0

veletta

closing cover

profilo telescopico

di aggiustaggio

telescopic

adjusting profile

profilo di

scorrimento

sliding profile

regolazione

in altezza

adjustment

inheight

profilo di

copertura

covering profile

pannello porta

door panel

8

8

50

4

50

120

perno retrattile

retractile floor pin

105

3

8

1

0

H

p

a

n

n

e

l

l

o

=

H

s

o

f

f

i

t

t

o

m

i

n

i

m

a

/

p

a

n

e

l

H

=

m

i

n

i

m

u

m

c

e

i

l

i

n

g

H

-

1

0

4

9

4

H

s

o

f

f

i

t

t

o

m

i

n

i

m

a

/

m

i

n

i

m

u

m

c

e

i

l

i

n

g

H

9

0

6