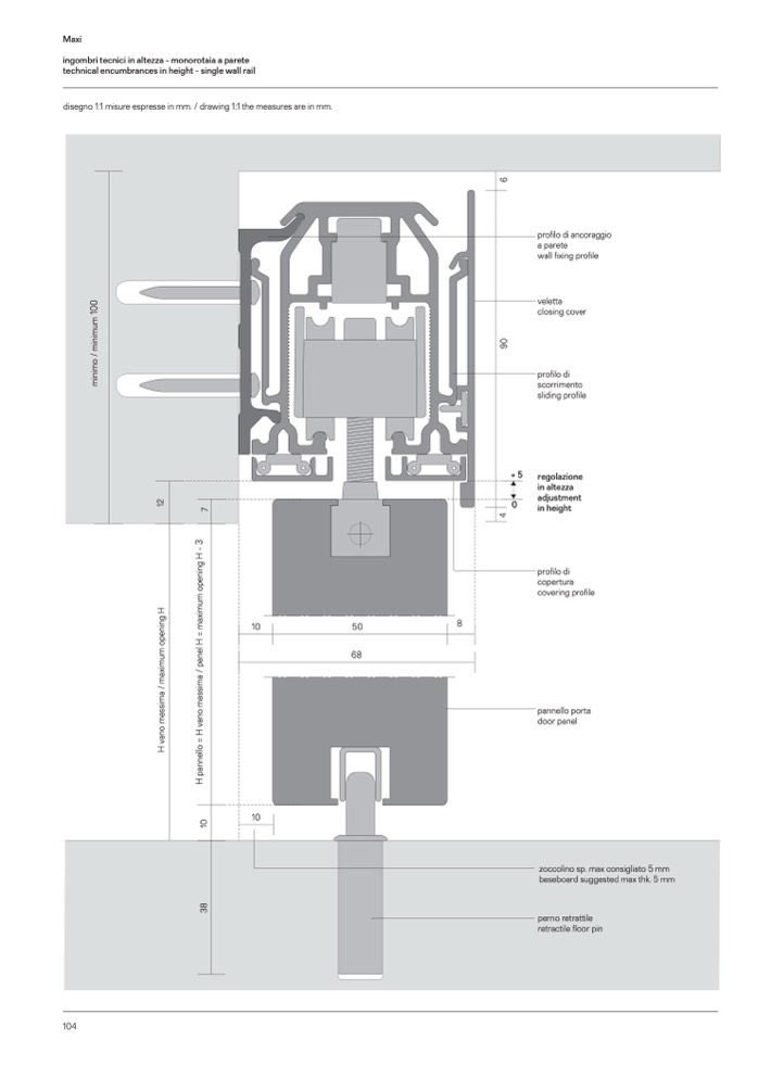
Maxi

ingombri tecnici in altezza - monorotaia a parete

technical encumbrances in height - single wall rail

disegno 1:1 misure espresse in mm. / drawing 1:1 the measures are in mm.

10

8

50

68

profilo di ancoraggio

a parete

wall fixing profile

veletta

closing cover

profilo di

scorrimento

sliding profile

+5

0

10

regolazione

in altezza

adjustment

in height

profilo di

copertura

covering profile

pannello porta

door panel

zoccolino sp. max consigliato 5 mm

baseboard suggested max thk. 5 mm

perno retrattile

retractile floor pin

104

H

v

a

n

o

m

a

s

s

i

m

a

/

m

a

x

i

m

u

m

o

p

e

n

i

n

g

H

1

2

3

8

1

0

H

p

a

n

n

e

l

l

o

=

H

v

a

n

o

m

a

s

s

i

m

a

/

p

a

n

e

l

H

=

m

a

x

i

m

u

m

o

p

e

n

i

n

g

H

-

3

7

m

i

n

i

m

o

/

m

i

n

i

m

u

m

1

0

0

4

9

0

6