Schemi impiantistici

Schemi impiantistici

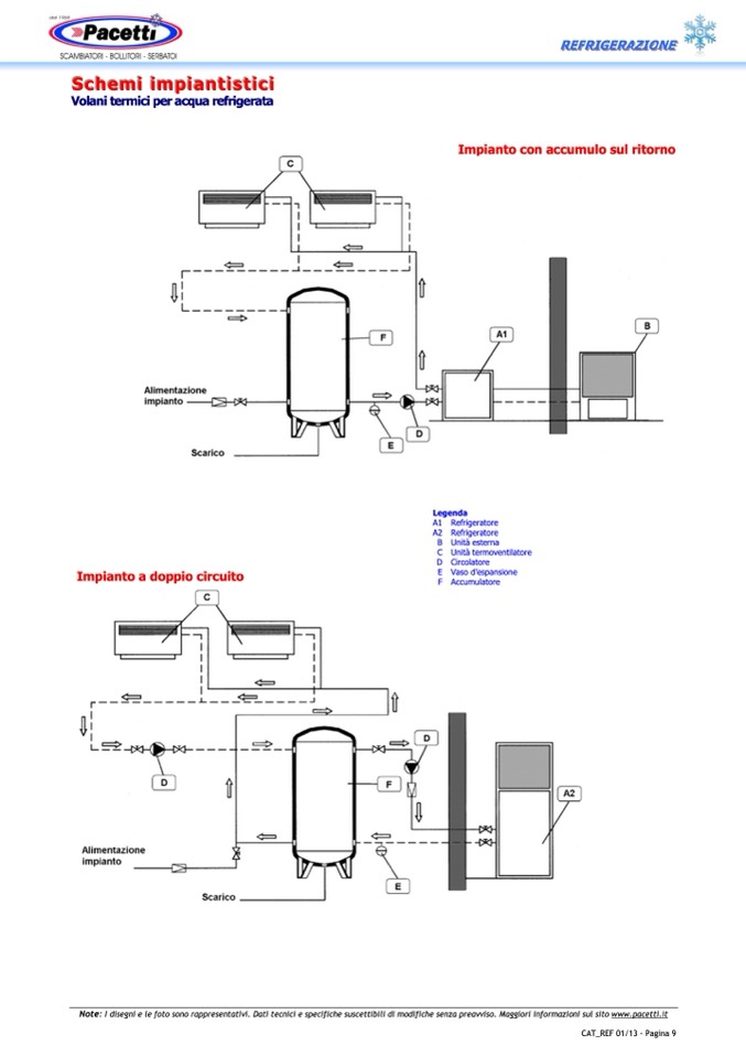
Volani termici per acqua refrigerata

REFRIGERAZIONE

REFRIGERAZIONE

Impianto con accumulo sul ritorno

Impianto a doppio circuito

Legenda

A1 Refrigeratore

A2 Refrigeratore

B Unità esterna

C Unità termoventilatore

D Circolatore

E Vaso d’espansione

F Accumulatore

Note: I disegni e le foto sono rappresentativi. Dati tecnici e specifiche suscettibili di modifiche senza preavviso. Maggiori informazioni sul sito www.pacetti.it

CAT_REF 01/13 - Pagina 9