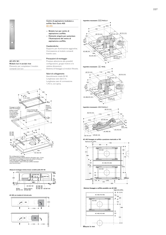
AC 472 181

Modulo luci in acciaio inox

Elemento per completare il modulo

comandi con luci

Centro di aspirazione modulare a

soffitto Vario Serie 400

AC 472

― Modulolucipercentrodi

aspirazione a soffitto.

― Elementosingoloperaumentare

l’illuminazione del centro di

aspirazione a soffitto.

Caratteristiche

Supporto per illuminazione aggiuntiva.

Connessione al modulo comandi

tramite cavo.

Precauzioni di montaggio

Prestare attenzione alle possibili

configurazioni, gruppi motore e le

relative dimensioni.

Sistema di fissaggio al modulo filtrante.

Valori di collegamento

Assorbimento totale 50 W.

Lunghezza cavo dati 2 m.

Lunghezza cavo di connessione

1,75 m, con spina.

Altezza di montaggio minima incluso condotto piatto DN 150

300

min. 10

Aluflex

AD 751 010

25

10

AC 402 181

Nastro adesivo

AD 990 090

122

16

AC 462 181

AC 472 181

AC 482 181

AC 402 con modulo di ricircolo aria

AD 854 048

24

AD 857 042

125

61

31

73

0.8

AD 857 040

Ulteriore fissaggio a soffitto possibile con AC 402

Taglio del soffitto

Misure in mm

227