121

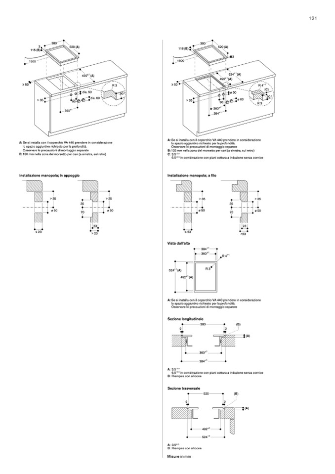
380

3

520 (A)

380

520 (A)

115 (B)

1500

> 35

118 (B)

1500

≥ 50

> 35

A: Se si installa con il coperchio VA 440 prendere in considerazione

lo spazio aggiuntivo richiesto per la profondità.

Osservare le precauzioni di montaggio separate

B: 133 mm nella zona del morsetto per cavi (a sinistra, sul retro)

C: 3.5

–0.5

6.5

+0.5

in combinazione con piani cottura a induzione senza cornice

3

≥ 50

492±1 (A)

dia. 50

90°

dia. 60

524+1 (A)

492±1 (A)

ø 50

R 3

R 4+1

(C)

ø 60

R3

90

360±1

90

360±1

384+1

A: Se si installa con il coperchio VA 440 prendere in considerazione

lo spazio aggiuntivo richiesto per la profondità.

Osservare le precauzioni di montaggio separate

B: 130 mm nella zona del morsetto per cavi (a sinistra, sul retro)

Installazione manopola; in appoggio

Installazione manopola; a filo

> 35

ø 50

35

70

> 35

ø 50

> 35

ø 50

384+1

360±1

35

70

> 35

ø 50

23

23

≤ 23

> 23

≤ 23

Vista dall’alto

>23

R 4+1

524+1 (A)

492±1 (A)

R3

A: Se si installa con il coperchio VA 440 prendere in considerazione

lo spazio aggiuntivo richiesto per la profondità.

Osservare le precauzioni di montaggio separate

Sezione longitudinale

380

(B)

2

2

360±1

384+1

(A)

A: 3.5

–0.5

6.5

+0.5

in combinazione con piani cottura a induzione senza cornice

B: Riempire con silicone

Sezione trasversale

520

(B)

2

2

(A)

492±1

524+1

A: 3.5

-0.5

B: Riempire con silicone

Misure in mm

90°