86

FISSAGGIO A PAVIMENTO

MONTAGGIO CON MENSOLA A COLONNA INTERNA

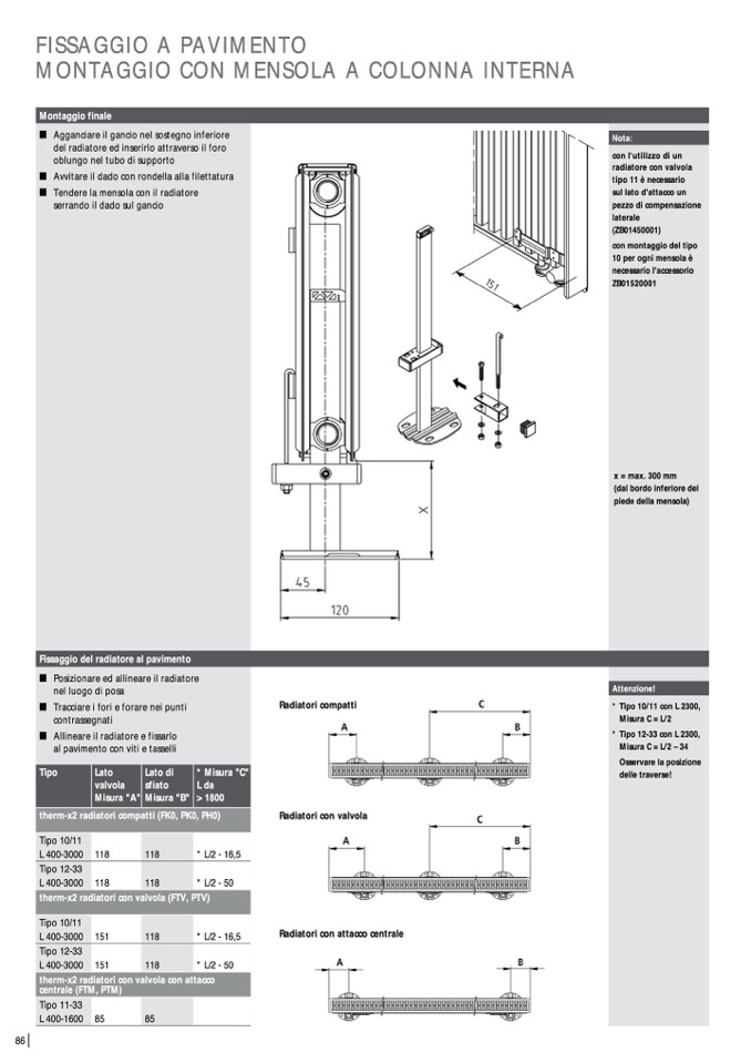
Montaggio finale

W Agganciareilgancionelsostegnoinferiore

del radiatore ed inserirlo attraverso il foro

oblungo nel tubo di supporto

W Avvitareildadoconrondellaallafilettatura

W Tendere la mensola con il radiatore

serrando il dado sul gancio

Nota:

con l'utilizzo di un

radiatore con valvola

tipo 11 è necessario

sul lato d'attacco un

pezzo di compensazione

laterale

(ZB01450001)

con montaggio del tipo

10 per ogni mensola è

necessario l'accessorio

ZB01520001

Fissaggio del radiatore al pavimento

W Posizionareedallineareilradiatore

nel luogo di posa

W Tracciareiforieforareneipunti

contrassegnati

W Allineareilradiatoreefissarlo

al pavimento con viti e tasselli

Tipo

Lato

Lato di

valvola

sfiato

Radiatori compatti

Attenzione!

* Tipo 10/11 con L 2300,

Misura C = L/2

* Tipo 12-33 con L 2300,

Misura C = L/2 – 34

Osservare la posizione

delle traverse!

* Misura "C"

L da

> 1800

Misura "A" Misura "B"

therm-x2 radiatori compatti (FK0, PK0, PH0)

Radiatori con valvola

Tipo 10/11

L 400-3000 118

118

*L/2- 16,5

Tipo 12-33

L 400-3000 118

118

*L/2- 50

therm-x2 radiatori con valvola (FTV, PTV)

Tipo 10/11

L 400-3000 151

118

*L/2- 16,5

Tipo 12-33

L 400-3000 151

118

*L/2- 50

therm-x2 radiatori con valvola con attacco

centrale (FTM, PTM)

Tipo 11-33

L 400-1600 85

85

Radiatori con attacco centrale

x = max. 300 mm

(dal bordo inferiore del

piede della mensola)