K

2

/

K

3

/

K

4

K3 - DETTAGLI TECNICI

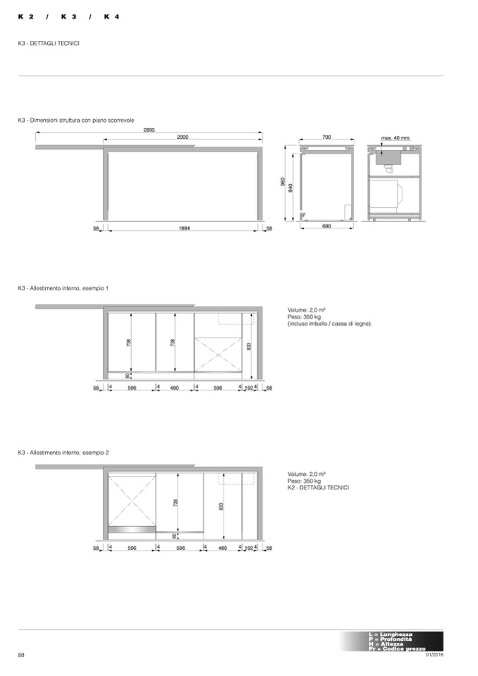
K3 - Dimensioni struttura con piano scorrevole

2895

2000

1884

700

max. 40 mm.

680

58

K3 - Allestimento interno, esempio 1

58

K3 - Allestimento interno, esempio 2

58

58

4

596

4

480

4

596

4

192 4

Volume: 2,0 m3

Peso: 350 kg

(incluso imballo / cassa di legno).

58

4

596

4

596

4

480

4

192 4

Volume: 2,0 m3

Peso: 350 kg

K2 - DETTAGLI TECNICI

58

88

01/2016

L = Lunghezza

P = Profondità

H = Altezza

Pr = Codice prezzo

8

0

7

3

8

7

3

8

8

3

3

8

0

7

3

8

8

3

3

9

6

0

8

4

0