K

2

/

K

3

/

K

4

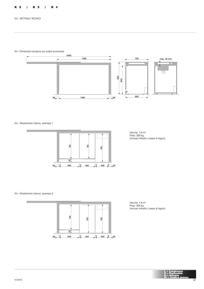
K4 - DETTAGLI TECNICI

K4 - Dimensioni struttura con piano scorrevole

2480

1596

1480

700

max. 40 mm.

680

58

K4 - Allestimento interno, esempio 1

58

K4 - Allestimento interno, esempio 2

58

58

Volume: 1,6 m3

Peso: 300 kg

(incluso imballo / cassa di legno).

4

596

4

460

4

408

4

58

Volume: 1,6 m3

Peso: 300 kg

(incluso imballo / cassa di legno).

4

596

4

460

4

408

4

58

01/2016

87

L = Lunghezza

P = Profondità

H = Altezza

Pr = Codice prezzo

8

0

7

3

8

8

0

7

3

8

8

3

3

7

3

8

8

3

3

8

3

3

9

6

0

8

4

0