K

2

/

K

3

/

K

4

K2 - DETTAGLI TECNICI

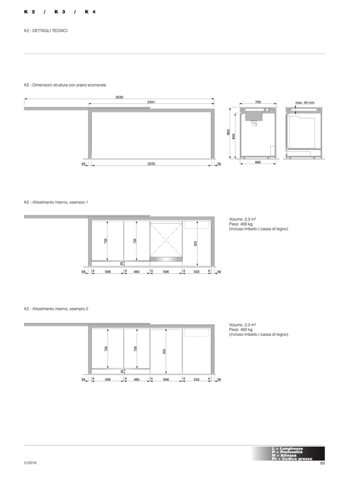
K2 - Dimensioni struttura con piano scorrevole

3530

2341

2225

700

max. 40 mm.

58

K2 - Allestimento interno, esempio 1

58

K2 - Allestimento interno, esempio 2

58

58

680

4

596

4

480

4

596

4

533

4

Volume: 2,3 m3

Peso: 400 kg

(incluso imballo / cassa di legno).

58

Volume: 2,3 m3

Peso: 400 kg

(incluso imballo / cassa di legno).

4

596

4

480

4

596

4

533

4

58

01/2016

89

L = Lunghezza

P = Profondità

H = Altezza

Pr = Codice prezzo

8

0

8

0

7

3

8

7

3

8

7

3

8

7

3

8

8

3

3

8

3

3

9

6

0

8

4

0