SCHEMI DI COLLEGAMENTO

Schemi di collegamento

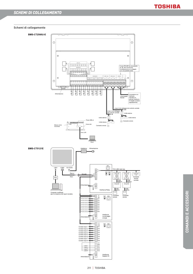
BMS-CT2560U-E

BMS-CT5121E

Adattatore

A

RS-485

B

Alimentazione

Misuratore potenza1

Misuratore potenza2

Misuratore potenza3

Misuratore potenza4

Misuratore potenza5

Misuratore potenza6

Misuratore potenza7

Misuratore potenza8

Alimentazione

ai16385215625_IM_BMS-CT1280E(EN) p11.pdf

1

03/12/21 09:52

a

LAN1

COM1

Hub

12V DCIN

Bianco

Nero

TCC-LINK main bus

Computer modificato

(per la creazione del report mensile)

Unità

interna

Comando

remoto

Unità

interna

Comando

remoto

Contact

Contact

Contact

Contact

Contact

Contact

Contact

Contact

Alimentazione

input 1

input 2

input 3

input 4

input 5

input 6

input 7

input 8

Load 1

Load 2

Load 3

Load 4

211

TOSHIBA

Alimentazione

U3 U4

U3 U4

U3 U4

Comando

remoto

centrale

U1 U2

Unità

U1 U2

Unità

esterna

U1 U2

esterna

U1 U2

USCITA

INGRESSO

F

C

O

M

C

O

M

D

O

4

D

I

4

C

O

M

C

O

M

D

O

3

D

I

3

C

O

M

C

O

M

D

O

2

D

I

2

C

O

M

C

O

M

D

O

1

D

I

1

Il cavo RS-485 ha una polarità

(A, B). Non funzionerà

correttamente se è collegato

con una polarità errata

INGRESSO

LINK1 (Uh)

LINK2 (Uh)

RS-485

C

O

M

D

I

8

C

O

M

D

I

7

C

O

M

D

I

6

C

O

M

D

I

5

U3

U4

U3

U4

B

GA

Alimentazione

i163852196611_IM_BMS-CT5121E.pdf

Messa a terra

funzionale

Linea segnale

RS-485

Linea U del cablaggio del controllo centrale

Linea U del cablaggio

1 03/12/21

09:59

Porta USB x2

Porta LAN

Cavo LAN

del controllo centrale

Unità esterna

Unità interna

Comando remoto

Unità esterna

Unità interna

Comando remoto

Client

Connessione con

interfaccia

misuratore di

potenza/ interfaccia

I/O digitale (venduta

separatamente)

SW1

1

SW5 SW6

Interfaccia Relay

N

L

S

G

B

A

F

G

U

2

U

1

C

O

M

A

N

D

I

E

A

C

C

E

S

S

O

R

I

B

A

SG

DI1

DI2

DI3

DI4

DI5

DI6

DI7

DI8

SW7 SW1

1

Interfaccia

monitoraggio

energia

N

L

B

A

SG

DI1

DI2

DI3

DI4

DI5

DI6

DI7

DI8

12V

GND

DO1

DO2

DO3

DO4

SW7 SW1

1

Interfaccia

Digitale I/O

N

L