SET VALVOLE DI AERAZIONE

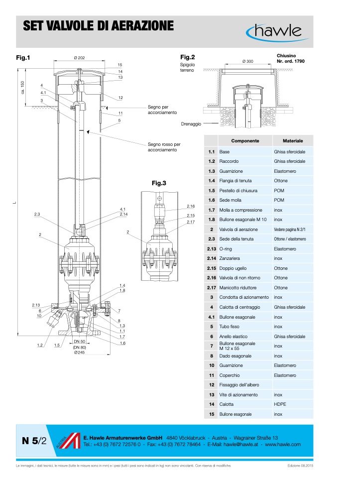
Fig.1

Ø 202

Fig.2

Spigolo

terreno

Drenaggio

Fig.3

Ø 300

Chiusino

Nr. ord. 1790

2.3

2

4.1

2.14

2.16

2.15

2.17

4

4.1

3

15

14

13

12

11

5

2.13

6

7

10

1.2

1.5

DN 50

(DN 80)

Ø 245

8

1.3

1.1

1.7

1.6

2

1.4

1.8

E. Hawle Armaturenwerke GmbH

Segno per

accorciamento

Segno rosso per

accorciamento

Componente

1.1 Base

1.2 Raccordo

1.3 Guarnizione

1.4 Flangia di tenuta

1.5 Pestello di chiusura

1.6 Sede molla

1.7 Molla a compressione

1.8 Bullone esagonale M 10

2 Valvola di aerazione

2.3 Sede della tenuta

2.13 O-ring

2.14 Zanzariera

2.15 Doppio ugello

2.16 Valvola di non ritorno

2.17 Manicotto riduttore

3 Condotta di azionamento

4 Calotta di centraggio

4.1 Bullone esagonale

5 Tubo fisso

6 Anello elastico

7

Bullone esagonale

M 12 x 55

8 Dado esagonale

10 Guarnizione

11 Coperchio

12 Fissaggio dell’albero

13 Vite di azionamento

14 Calotta

15 Bullone esagonale

Materiale

Ghisa sferoidale

Ghisa sferoidale

Elastomero

Ottone

POM

POM

inox

inox

Vedere pagina N 2/1

Ottone / elastomero

Elastomero

inox

Ottone

Ottone

Ottone

inox

Ghisa sferoidale

inox

inox

Ghisa sferoidale

inox

inox

Elastomero

Elastomero

inox

HDPE

inox

L

c

a

.

1

5

0

4840 Vöcklabruck - Austria - Wagrainer Straße 13

Tel.: +43 (0) 7672 72576 0 - Fax: +43 (0) 7672 78464 - E-Mail: hawle@hawle.at - www.hawle.com

N 5/2

Le immagini, i dati tecnici, le misure (tutte le misure sono in mm) e i pesi (tutti i pesi sono indicati in kg) non sono vincolanti. Con riserva di modifiche.

Edizione 08.2015