CHIUSINO DIN adattabile

con anello di smontaggio estraibile per manti stradali da fresare

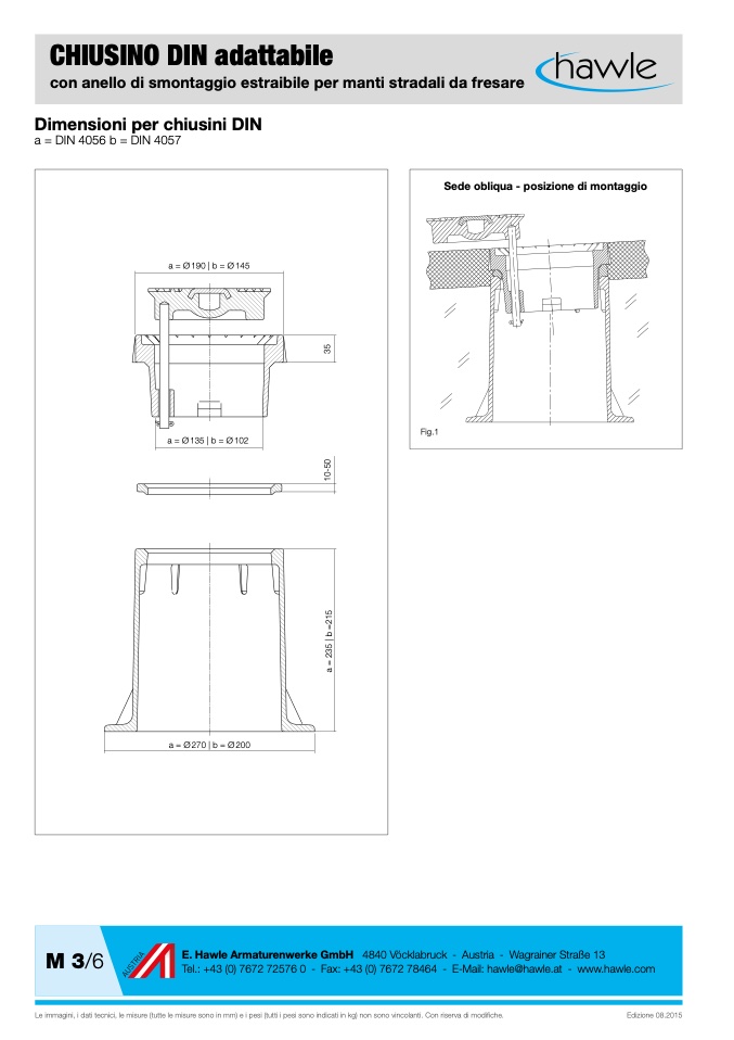
Dimensioni per chiusini DIN

a = DIN 4056 b = DIN 4057

a = Ø 190 | b = Ø 145

Sede obliqua - posizione di montaggio

a = Ø 135 | b = Ø 102

Fig.1

a

=

2

3

5

|

b

=

2

1

5

1

0

-

5

0

3

5

a = Ø 270 | b = Ø 200

E. Hawle Armaturenwerke GmbH

4840 Vöcklabruck - Austria - Wagrainer Straße 13

Tel.: +43 (0) 7672 72576 0 - Fax: +43 (0) 7672 78464 - E-Mail: hawle@hawle.at - www.hawle.com

M 3/6

Le immagini, i dati tecnici, le misure (tutte le misure sono in mm) e i pesi (tutti i pesi sono indicati in kg) non sono vincolanti. Con riserva di modifiche.

Edizione 08.2015