Boiler house

Conductivity sensors

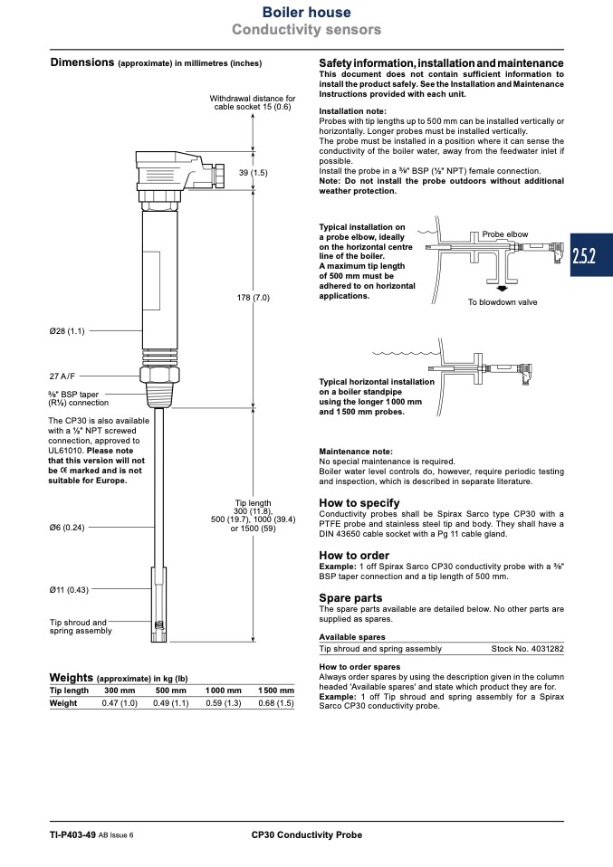
Dimensions (approximate) in millimetres (inches)

Safety information, installation and maintenance

This document does not contain sufficient information to

install the product safely. See the Installation and Maintenance

Instructions provided with each unit.

Installation note:

Probes with tip lengths up to 500 mm can be installed vertically or

horizontally. Longer probes must be installed vertically.

The probe must be installed in a position where it can sense the

conductivity of the boiler water, away from the feedwater inlet if

possible.

Install the probe in a " BSP (1⁄2" NPT) female connection.

Note: Do not install the probe outdoors without additional

weather protection.

Withdrawal distance for

cable socket 15 (0.6)

39 (1.5)

178 (7.0)

Typical installation on

a probe elbow, ideally

on the horizontal centre

line of the boiler.

A maximum tip length

of 500 mm must be

adhered to on horizontal

applications.

Typical horizontal installation

on a boiler standpipe

using the longer 1000 mm

and 1500 mm probes.

Maintenance note:

Probe elbow

To blowdown valve

Ø28 (1.1)

27 A/F

" BSP taper

(R1⁄2) connection

The CP30 is also available

with a 1⁄2" NPT screwed

connection, approved to

UL61010. Please note

that this version will not

be marked and is not

suitable for Europe.

Ø6 (0.24)

Ø11 (0.43)

Tip shroud and

spring assembly

Weights (approximate) in kg (lb)

Tip length

300 (11.8),

500 (19.7), 1000 (39.4)

or 1500 (59)

No special maintenance is required.

Boiler water level controls do, however, require periodic testing

and inspection, which is described in separate literature.

How to specify

Conductivity probes shall be Spirax Sarco type CP30 with a

PTFE probe and stainless steel tip and body. They shall have a

DIN 43650 cable socket with a Pg 11 cable gland.

How to order

Example: 1 off Spirax Sarco CP30 conductivity probe with a "

BSP taper connection and a tip length of 500 mm.

Spare parts

The spare parts available are detailed below. No other parts are

supplied as spares.

Available spares

Tip shroud and spring assembly

How to order spares

Stock No. 4031282

Tip length

300 mm

Weight

0.47 (1.0)

500 mm

0.49 (1.1)

1000 mm

0.59 (1.3)

1500 mm

0.68 (1.5)

Always order spares by using the description given in the column

headed 'Available spares' and state which product they are for.

Example: 1 off Tip shroud and spring assembly for a Spirax

Sarco CP30 conductivity probe.

TI-P403-49 AB Issue 6

CP30 Conductivity Probe

2.5.2