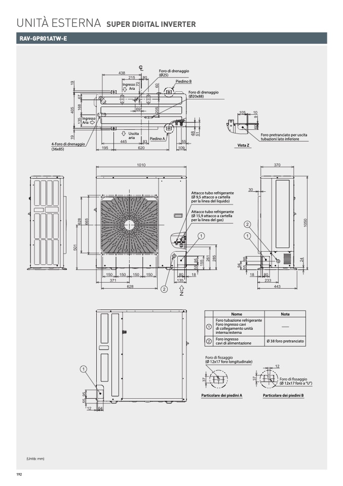
UNITÀ ESTERNA SUPER DIGITAL INVERTER

RAV-GP801ATW-

E

Foro di drenaggi

o

(Ø25

)

Piedino B

Ingresso

Ari

a

Foro di drenaggi

o

(Ø20x88)

Ingresso

Aria

Uscita

aria

Piedino A

Foro pretranciato per uscit

a

tubazioni lato inferiore

4-Foro di drenaggi

o

(36x85)

Vista Z

Attacco tubo refrigerante

(Ø 9,5 attacco a cartell

a

per la linea del liquido)

Attacco tubo refrigerante

(Ø 15,9 attacco a cartella

per la linea del gas)

Nome

Not

e

Foro tubazione refrigerant

e

Foro ingresso cav

i

di collegamento unit

à

interna/estern

a

Foro ingress

o

cavi di alimentazion

e

Ø 38 foro pretranciat

o

(Ø 12x17 foro longitudinale

)

(Ø 12x17 foro a “U”

)

Particolare dei piedini A

Particolare dei piedini B

(Unità: mm

)

192