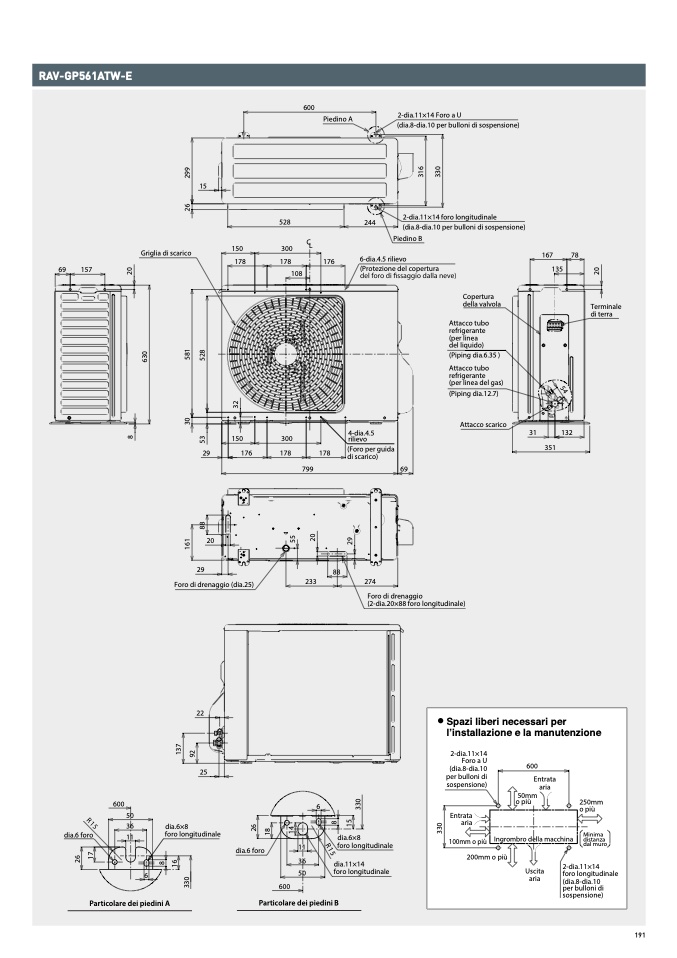
RAV-GP561ATW-

E

600

Piedino A

150

178

6

9

15

7

3

2

15

0

17

6

Particolare dei piedini A

6

3

3

0

2

6

1

7

dia.6 foro

8

1

6

11

foro longitudinale

R

1

5

36

dia.6×

8

50

60

0

25

1

3

7

9

2

22

Foro di drenaggio (dia.25

)

29

1

6

1

20

8

8

29

8

5

3

3

0

6

3

0

5

8

1

5

2

8

2

0

Griglia di scarico

2

6

2

9

9

15

52

8

C

L

30

0

178

176

108

2-dia.11×14 Foro a

U

(dia.8-dia.10 per bulloni di sospensione)

3

1

6

3

3

0

244

2-dia.11×14 foro longitudinale

(dia.8-dia.10 per bulloni di sospensione)

Piedino B

6-dia.4.5 rilievo

(Protezione del copertura

Copertur

a

della valvol

a

Attacco tub

o

refrigerant

e

(per line

a

del liquido

)

(Piping dia.6.35

)

Attacco tub

o

refrigerant

e

(per linea del gas

)

(Piping dia.12.7

)

Attacco scarico

16

7

135

7

8

2

0

Terminal

e

di terr

a

5

4

30

0

178

178

4-dia.4.5

rilievo

(Foro per guid

a

di scarico

)

799

69

5

5

2

0

2

9

31

13

2

351

88

233

274

Foro di drenaggio

(2-dia.20×88 foro longitudinale)

2

6

1

8

dia.6 foro

1

4

600

6

3

3

0

11

36

50

8

1

5

R

1

5

dia.6×

8

foro longitudinale

dia.11×14

foro longitudinal

e

Particolare dei piedini

B

3

3

0

Spazi liberi necessari per

l’installazione e la manutenzion

e

2-dia.11×14

Foro a U

(dia.8-dia.1

0

per bulloni di

sospensione

)

60

0

Entrat

a

ari

a

50m

m

o più

250mm

o più

Entrat

a

ari

a

100mm o pi

ù

Ingrombro della macchina

Minim

a

distanza

dal muro

200mm o pi

ù

Uscita

ari

a

2-dia.11×14

foro longitudinale

(dia.8-dia.10

per bulloni di

sospensione)

191