124 | Piani cottura a induzione ed elettrici

Disegni Tecnici

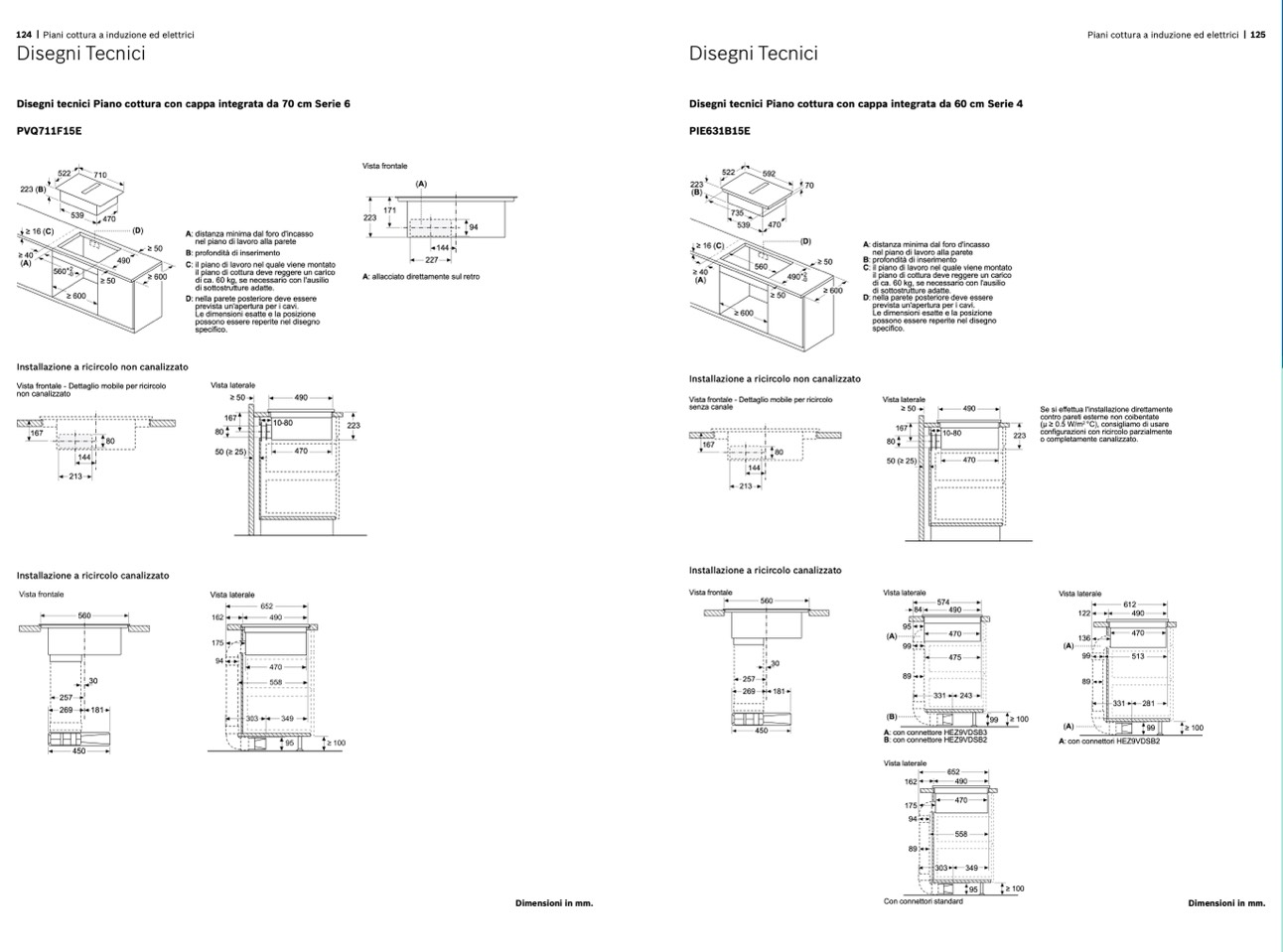
Disegni tecnici Piano cottura con cappa integrata da 70 cm Serie 6

PVQ711F15E

Piani cottura a induzione ed elettrici | 125

522522

22322(B3)(B)

710710

(A)

522

592

735

≥ 1≥6 1(C6)(C)

≥ 4≥0 40

(D)(D)

490490

A: dAis: tdainstzanmzainmiminaimdaldfoarl ofodro'indc'ainscsaosso

nelnpeial npoiandoi ladvi olarvooarollaapllarpeaterete

B:pBr:opforonfdoitnàdditàiindsieinrsimereimnteonto

94

(A)(A)

C:

D:

iCl p: ial npoiandoi ladvi olarvoonroelnqeulaqleuavlienveienmeomntoantotato

il pial npoiandoi cdoittcuortatudraevdeervegrgeegrgeeuren ucanrcicaorico

di cdai.c6a0. 6kg0,ksge, nsecneescseasrsioarcioncol'anuls'ailuiosilio

di sdoittsosttrousttrurtetuaredatdtea.tte.

nDe:llnaepllarpeaterepteospteorsitoerreiodrevdeeevessesrseere

prepvrisetvaisutan'aupne'arptuerratupraerpiecraivci.avi.

Le Ldeimdeimnseionnsioensiaettseatetelaeplaospizoisoinzeione

pospsosnsoneossesrseerreprerpiternitelndeisl edgisneogno

spescpifeicoif.ico.

144

227

560

(D)

490+2

≥ 50

≥ 600

A:

B:

distanza minima dal foro d'incasso

nelpianodilavoroallaparete

profondità di inserimento

il piano di lavoro nel quale viene montato

il piano di cottura deve reggere un carico

di ca. 60 kg, se necessario con l'ausilio

di sottostrutture adatte.

167

80

prevista un'apertura per i cavi.

10-80

+2 +2

560560

C:

D:

539539

470470

≥ 5≥0 50

223

171

A: allacciato direttamente sul retro

539

470

≥ 50

-0 -0

≥ 6≥00600

≥ 5≥0 50

≥ 6≥00600

(A)

≥ 600

-0

Installazione a ricircolo non canalizzato

Vista frontale - Dettaglio mobile per ricircolo

non canalizzato

A: distanza minima dal foro d'incasso

144

213

80

Installazione a ricircolo canalizzato

Installazione a ricircolo canalizzato

560

30

257

30

Vista laterale

≥ 50

167

80

50 (≥ 25)

Vista frontale

560

574

490

470

Vista laterale

122

136

99

257 269

269

450

181

30

181

475

331

243

560

490

470

612

490

470

513

181

450

(B)

A: con connettore HEZ9VDSB3

99

≥ 100

331

A: con connettori HEZ9VDSB2

80

Le dimensioni esatte e la posizione

223

Vista laterale

≥ 50

490

470

B: profondità di inserimento

C: il piano di lavoro nel quale viene montato

167

50 (≥ 25)

10-80

223

di sottostrutture adatte.

D: nella parete posteriore deve essere

10-80

223

Vista frontale

(A)

223

70

≥600

(B)

≥ 16 (C)

≥ 40

-0

≥ 50

Dimensioni in mm.

Dimensioni in mm.

Disegni Tecnici

Disegni tecnici Piano cottura con cappa integrata da 60 cm Serie 4

PIE631B15E

≥ 16 (C)

≥ 40

(D)

490+2

≥ 50

≥ 600

nel piano di lavoro alla parete

Installazione a ricircolo non canalizzato

il piano di cottura deve reggere un carico

Vista frontale - Dettaglio mobile per ricircolo

Vista laterale

≥ 50

167

80

50 (≥ 25)

Vista laterale

84

(A)

95

99

di ca. 60 kg, se necessario con l'ausilio

senza canale

490

470

Se si effettua l'installazione direttamente

contro pareti esterne non coibentate

(μ ≥ 0.5 W/m

2

°C), consigliamo di usare

configurazioni con ricircolo parzialmente

o completamente canalizzato.

possono essere reperite nel disegno

167

specifico.

144

213

522

223

70

(B)

735

539

470

(A)

257

89

89

269

450

(A)

≥ 100

560

nella parete posteriore deve essere

prevista un'apertura per i cavi.

Le dimensioni esatte e la posizione

possono essere reperite nel disegno

specifico.

592

B: con connettore HEZ9VDSB2

Vista laterale

162

175

94

558

89

303

Con connettori standard

349

95

≥ 100

652

490

470

281

99