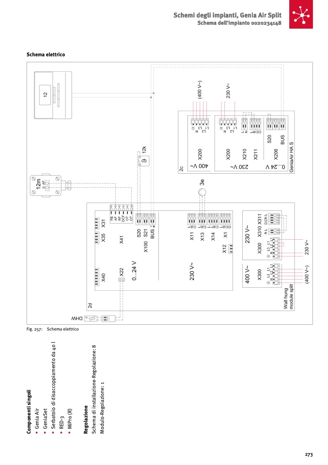
Schema elettrico

Fig. 257: Schema elettrico

Schemi degli impianti, Genia Air Split

Schema dell’impianto 0020234148

273

C

o

m

p

o

n

e

n

t

i

s

i

n

g

o

l

i

G

e

n

i

a

A

i

r

G

e

n

i

a

S

e

t

S

e

r

b

a

t

o

i

o

d

i

d

i

s

a

c

c

o

p

p

i

a

m

e

n

t

o

d

a

4

0

l

R

E

D

-

3

M

i

P

r

o

(

R

)

R

e

g

o

l

a

z

i

o

n

e

S

c

h

e

m

a

d

i

i

n

s

t

a

l

l

a

z

i

o

n

e

-

R

e

g

o

l

a

z

i

o

n

e

:

8

M

o

d

u

l

o

-

R

e

g

o

l

a

z

i

o

n

e

:

1