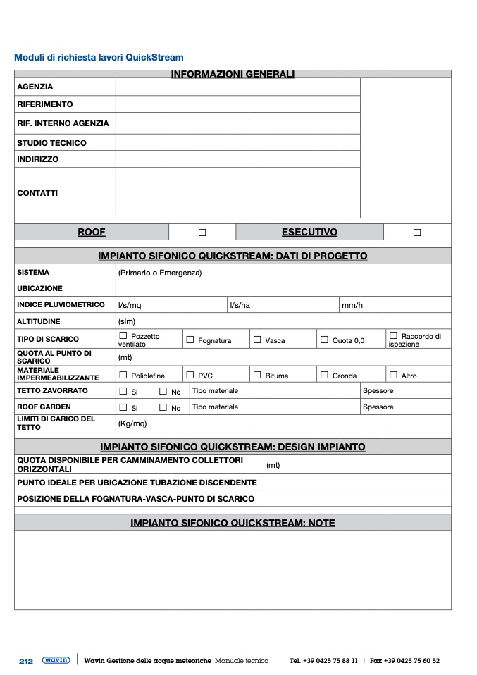
Moduli di richiesta lavori QuickStream

INFORMAZIONI GENERALI

AGENZIA

RIFERIMENTO

RIF. INTERNO AGENZIA

STUDIO TECNICO

INDIRIZZO

CONTATTI

ROOF □

ESECUTIVO □

IMPIANTO SIFONICO QUICKSTREAM: DATI DI PROGETTO

SISTEMA

(Primario o Emergenza)

UBICAZIONE

INDICE PLUVIOMETRICO l/s/mq l/s/ha mm/h

ALTITUDINE (slm)

TIPO DI SCARICO

Pozzetto

ventilato

Fognatura

Vasca

Quota 0,0

Raccordo di

ispezione

QUOTA AL PUNTO DI

SCARICO

(mt)

MATERIALE

IMPERMEABILIZZANTE

Poliolefine

PVC

Bitume

Gronda

Altro

TETTO ZAVORRATO

Si

No

Tipo materiale Spessore

ROOF GARDEN

Si

No

Tipo materiale Spessore

LIMITI DI CARICO DEL

TETTO

(Kg/mq)

IMPIANTO SIFONICO QUICKSTREAM: DESIGN IMPIANTO

QUOTA DISPONIBILE PER CAMMINAMENTO COLLETTORI

ORIZZONTALI

(mt)

PUNTO IDEALE PER UBICAZIONE TUBAZIONE DISCENDENTE

POSIZIONE DELLA FOGNATURA-VASCA-PUNTO DI SCARICO

IMPIANTO SIFONICO QUICKSTREAM: NOTE

212

Wavin Gestione delle acque meteoriche Manuale tecnico

Tel. +39 0425 75 88 11 | Fax +39 0425 75 60 52