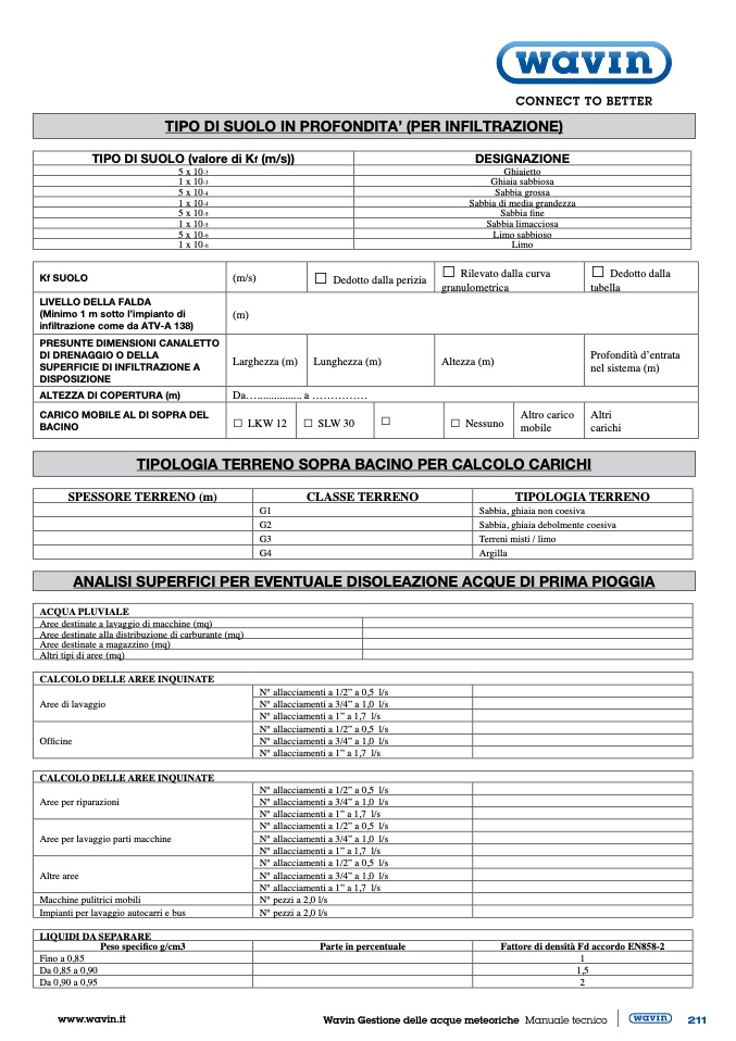
TIPO DI SUOLO IN PROFONDITA’ (PER INFILTRAZIONE)

TIPO DI SUOLO (valore di Kf (m/s))

DESIGNAZIONE

5 x 10

-3

Ghiaietto

1 x 10

-3

Ghiaia sabbiosa

5 x 10

-4

Sabbia grossa

1 x 10

-4

Sabbia di media grandezza

5 x 10

-5

Sabbia fine

1 x 10

-5

Sabbia limacciosa

5 x 10

-6

Limo sabbioso

1 x 10

-6

Limo

Kf SUOLO

(m/s) □ Dedotto dalla perizia

□ Rilevato dalla curva

granulometrica

□ Dedotto dalla

tabella

LIVELLO DELLA FALDA

(Minimo 1 m sotto l’impianto di

infiltrazione come da ATV-A 138)

(m)

PRESUNTE DIMENSIONI CANALETTO

DI DRENAGGIO O DELLA

SUPERFICIE DI INFILTRAZIONE A

DISPOSIZIONE

Larghezza (m) Lunghezza (m)

Altezza (m)

Profondità d’entrata

nel sistema (m)

ALTEZZA DI COPERTURA (m)

Da................... a ...............

CARICO MOBILE AL DI SOPRA DEL

BACINO

□ LKW 12

□ SLW 30

□ □ Nessuno

Altro carico

mobile

Altri

carichi

TIPOLOGIA TERRENO SOPRA BACINO PER CALCOLO CARICHI

ANALISI SUPERFICI PER EVENTUALE DISOLEAZIONE ACQUE DI PRIMA PIOGGIA

SPESSORE TERRENO (m)

CLASSE TERRENO

TIPOLOGIA TERRENO

G1

Sabbia, ghiaia non coesiva

G2

Sabbia, ghiaia debolmente coesiva

G3

Terreni misti / limo

G4

Argilla

ACQUA PLUVIALE

Aree destinate a lavaggio di macchine (mq)

Aree destinate alla distribuzione di carburante (mq)

Aree destinate a magazzino (mq)

Altri tipi di aree (mq)

CALCOLO DELLE AREE INQUINATE

Aree di lavaggio

N° allacciamenti a 1/2” a 0,5 l/s

N° allacciamenti a 3/4” a 1,0 l/s

N° allacciamenti a 1” a 1,7 l/s

Officine

N° allacciamenti a 1/2” a 0,5 l/s

N° allacciamenti a 3/4” a 1,0 l/s

N° allacciamenti a 1” a 1,7 l/s

CALCOLO DELLE AREE INQUINATE

Aree per riparazioni

N° allacciamenti a 1/2” a 0,5 l/s

N° allacciamenti a 3/4” a 1,0 l/s

N° allacciamenti a 1” a 1,7 l/s

Aree per lavaggio parti macchine

N° allacciamenti a 1/2” a 0,5 l/s

N° allacciamenti a 3/4” a 1,0 l/s

N° allacciamenti a 1” a 1,7 l/s

Altre aree

N° allacciamenti a 1/2” a 0,5 l/s

N° allacciamenti a 3/4” a 1,0 l/s

N° allacciamenti a 1” a 1,7 l/s

Macchine pulitrici mobili

N° pezzi a 2,0 l/s

Impianti per lavaggio autocarri e bus

N° pezzi a 2,0 l/s

LIQUIDI DA SEPARARE

Peso specifico g/cm3

Parte in percentuale

Fattore di densità Fd accordo EN858-2

Fino a 0,85

1

Da 0,85 a 0,90

1,5

Da 0,90 a 0,95

2

www.wavin.it

Wavin Gestione delle acque meteoriche Manuale tecnico

211