SCHEMI DI IMPIANTO

CONSIGLIATI

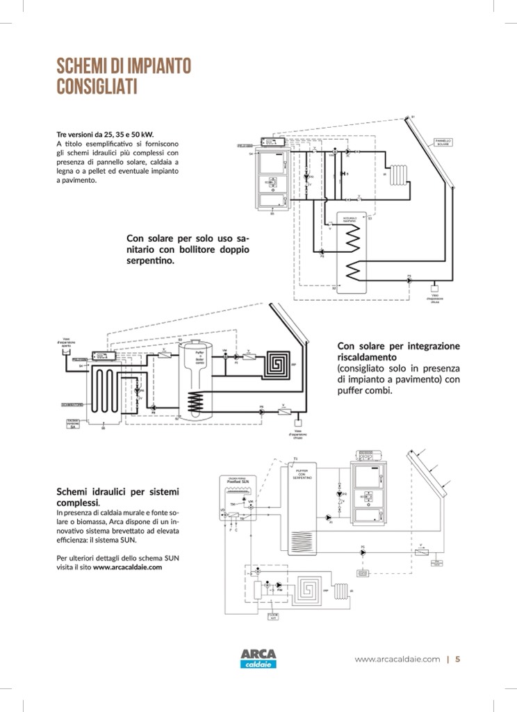
Tre versioni da 25, 35 e 50 kW.

A titolo esemplificativo si forniscono

gli schemi idraulici più complessi con

presenza di pannello solare, caldaia a

legna o a pellet ed eventuale impianto

a pavimento.

Con solare per solo uso sa-

nitario con bollitore doppio

serpentino.

Con solare per integrazione

riscaldamento

(consigliato solo in presenza

di impianto a pavimento) con

puffer combi.

Schemi idraulici per sistemi

complessi.

In presenza di caldaia murale e fonte so-

lare o biomassa, Arca dispone di un in-

novativo sistema brevettato ad elevata

efficienza: il sistema SUN.

Per ulteriori dettagli dello schema SUN

visita il sito www.arcacaldaie.com

www.arcacaldaie.com | 5