studioLine | Disegni tecnici PIANI COTTURA

studioLine | Disegni tecnici PIANI COTTURA

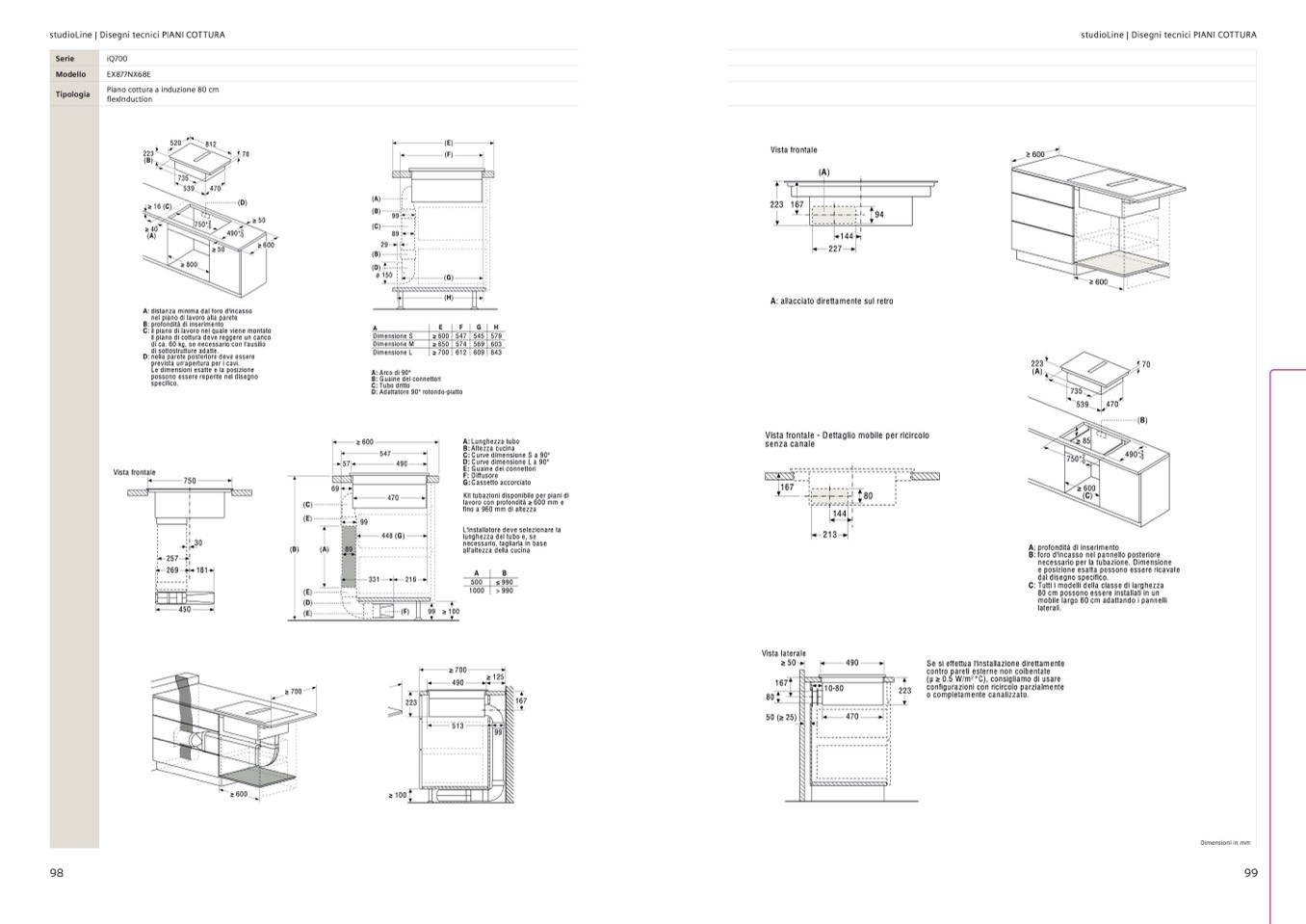
Serie

iQ700

Modello

Tipologia

EX877NX68E

Piano cottura a induzione 80 cm

flexInduction

520

812

735

539

470

(E)

(F)

223

(B)

≥ 16 (C)

≥ 40

70

(D)

-0

490+2

-0

≥ 50

≥ 800

A: distanza minima dal foro d'incasso

nel piano di lavoro alla parete

(A)

(B)

750+2

≥ 50

≥ 600

99

(C)

89

(A)

29

(B)

(D)

ø 150

69

(C)

470

(G)

B: profondità di inserimento

C: il piano di lavoro nel quale viene montato

(H)

A

E

F

G

H

≥ 600

547

545

≥ 650

574

569

il piano di cottura deve reggere un carico

di ca. 60 kg, se necessario con l'ausilio

di sottostrutture adatte.

Vista frontale

750

Dimensione S

Dimensione M

Dimensione L

≥ 700

612

579

603

609 643

D: nella parete posteriore deve essere

prevista un'apertura per i cavi.

Le dimensioni esatte e la posizione

possono essere reperite nel disegno

specifico.

A: Arco di 90°

B: Guaine dei connettori

C: Tubo dritto

D: Adattatore 90° rotondo-piatto

≥ 600

57

547

A: Lunghezza tubo

B: Altezza cucina

C: Curve dimensione S a 90°

D: Curve dimensione L a 90°

E: Guaine dei connettori

F: Diffusore

G: Cassetto accorciato

Kit tubazioni disponibile per piani di

lavoro con profondità ≥ 600 mm e

fino a 960 mm di altezza

490

99

448 (G)

30

181

(E)

(E)

(D)

(E)

≥ 700

≥ 100

(A)

L'installatore deve selezionare la

lunghezza del tubo e, se

necessario, tagliarla in base

all'altezza della cucina

A

B

89

257

269

(B)

331

216

500

1000

≤ 990

> 990

≥ 125

167

450

(F)

99

≥ 125

99

≥ 100

≥ 100

≥ 700

490

≥ 700

490

≥ 700

223 167

513

99

≥ 600

223

513

≥ 600

Vista frontale

(A)

223 167

144

227

A: allacciato direttamente sul retro

Vista frontale - Dettaglio mobile per ricircolo

senza canale

167

≥ 600

≥ 600

490

223

510

94

223

(A)

≥ 600

70

470

735

539

(B)

≥ 85

750+2

-0

≥ 600

(C)

490+2

-0

80

144

213

Vista laterale

≥ 50

490

necessario per la tubazione. Dimensione

e posizione esatta possono essere ricavate

dal disegno specifico.

C: Tutti i modelli della classe di larghezza

80 cm possono essere installati in un

mobile largo 60 cm adattando i pannelli

laterali.

Se si effettua l'installazione direttamente

contro pareti esterne non coibentate

(μ ≥ 0.5 W/m

2

°C), consigliamo di usare

configurazioni con ricircolo parzialmente

o completamente canalizzato.

A: profondità di inserimento

B: foro d'incasso nel pannello posteriore

167

80

10-80

50 (≥ 25)

223

470

98

99

Dimensioni in mm