studioLine | Disegni tecnici PIANI COTTURA

studioLine | Disegni tecnici PIANI COTTURA

96

97

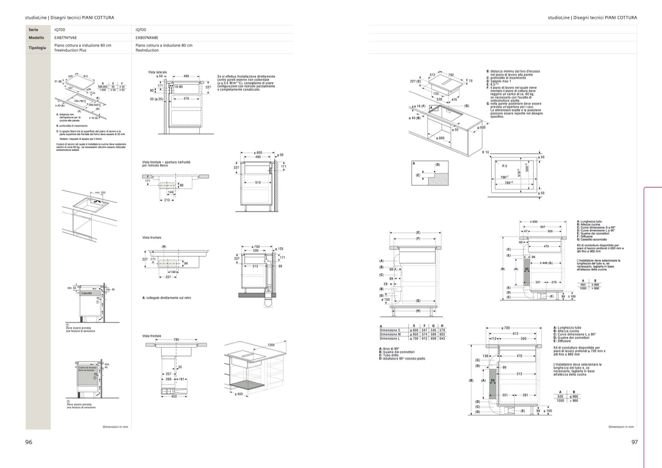
Serie

iQ700

iQ700

Modello

EX877NYV6E

EX807NX68E

Piano cottura a induzione 80 cm

Piano cottura a induzione 80 cm

Tipologia

freeInduction Plus

flexInduction

520

812

51 (B)

537

Vista laterale

≥ 50

D

E

F

585-600

50

≥ 35

171

> 600

≥ 50

≥ 50

80

490

470

Se si effettua l'installazione direttamente

contro pareti esterne non coibentate

(μ ≥ 0.5 W/m

2

°C), consigliamo di usare

configurazioni con ricircolo parzialmente

o completamente canalizzato.

512

792

470

≥ 50

B: distanza minima dal foro d'incasso

nel piano di lavoro alla parete

C: profondità di inserimento

D: Spigolo max 1

E: 6,5

+0,5

F: il piano di lavoro nel quale viene

montato il piano di cottura deve

reggere un carico di ca. 60 kg,

se necessario con l'ausilio di

sottostrutture adatte.

G: nella parete posteriore deve essere

prevista un'apertura per i cavi.

Le dimensioni esatte e la posizione

possono essere reperite nel disegno

specifico.

Cucina da incasso/

forno da incasso

20

1

1

Deve essere prevista

una fessura di aerazione

min.

45

30

181

510

29

10-80

227

227 (C)

≥ 16 (F)

A

≥ 40 (B)

70

(G)

(E)

750-780

-0

+2

≥ 40 (A)

490-500

-0

+2

(D)

(F)

A: distanza min.

dall'apertura per la

≥ 16 (C)

cucina alla parete

B: profondità di inserimento

C: lo spazio libero tra la superficie del piano di lavoro e la

parte superiore del frontale del forno deve essere di 30 mm

Vedere i requisiti di spazio per il forno

Il piano di lavoro nel quale è installata la cucina deve sostenere

carichi di circa 60 kg; se necessario devono essere utilizzate

sottostrutture adatte

50 (≥ 25)

≥ 600

≥ 600

Cucina da incasso/

forno da incasso

20

1

1

Deve essere prevista

una fessura di aerazione

min. 65

Cassetto

20

1

80

780+2

(C)

(E)

23

735

539

≥ 800

(D)

min.

171

45

(E)

(E)

(F)

(G)

(H)

796±1

1

5

min. 45

(C)

89

29

(B)

(D)

ø 150

(E)

(D)

(E)

≥ 700

99

331

A

B

500

≤ 990

1000

> 990

Dimensioni in mm

Dimensioni in mm

Vista frontale – apertura nell'unità

per ricircolo libero

227

A

R 5

2

+

0

1

±

6

0

5

≥ 50

≥ 50

≥ 600

547

Vista frontale

227

171

144

213

(A)

≥ 600

94

47

69

500

470

≤ 448 (G)

331

216

(F)

A: Lunghezza tubo

B: Altezza cucina

C: Curve dimensione S a 90°

D: Curve dimensione L a 90°

E: Guaine dei connettori

F: Diffusore

G: Cassetto accorciato

Kit di condutture disponibile per

piani di lavoro profondi ≥ 600 mm e

alti fino a 960 mm

L'installatore deve selezionare la

lunghezza del tubo e, se

necessario, tagliarla in base

all'altezza della cucina

144

227

99

(B)

(A)

89

A: collegato direttamente sul retro

≥ 600

99

≥ 100

257

269

(B)

(A)

89

(D)

(C)

(D)

450

≥ 600

≥ 700

≥ 125

171

99

227

(A)

(B)

99

≥ 600

490

510

≥ 700

500

513

≥ 50

171

R 10

Deve essere prevista

1

A

E

F

G

H

una fessura di aerazione

Dimensione S

≥ 600

547

545

579

Vista frontale

Dimensione M

≥ 650

574

569

603

780

Dimensione L

≥ 700

612

609

643

1200

1200

490

A: Arco di 90°

B: Guaine dei connettori

227

171

C: Tubo dritto

D: Adattatore 90° rotondo-piatto

A: Lunghezza tubo

B: Altezza cucina

C: Curve dimensione L a 90°

D: Guaine dei connettori

E: Diffusore

Kit di condutture disponibile per

piani di lavoro profondi ≥ 700 mm e

alti fino a 960 mm

L'installatore deve selezionare la

lunghezza del tubo e, se

necessario, tagliarla in base

all'altezza della cucina

A

B

500

≤ 960

1000

> 960

(C)

(D)

136

112

612

500

470

513

281

(E)

99

≥ 100