Sistema ibrido ad incasso

HYBRID BOX

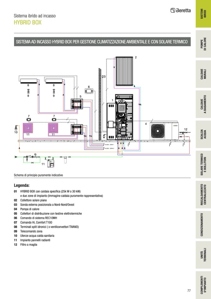
SISTEMA AD INCASSO HYBRID BOX PER GESTIONE CLIMATIZZAZIONE AMBIENTALE E CON SOLARE TERMICO

T

S

I

R

B

I

S

ACS

10

12

8

8

9

9

7

7

2

2

6

5

3

2

1

2

AL BOX - ZONA 1

AL BOX - ZONA 2

11

11

Schema di principio puramente indicativo

Legenda:

11

01 HYBRID BOX con caldaia specifica (25k W o 30 kW)

e due zone di impianto (Immagine caldaia puramente rappresentativa)

02 Collettore solare piano

03 Sonda esterna posizionata a Nord-Nord/Ovest

04 Pompa di calore

05 Collettori di distribuzione con testine elettrotermiche

06 Comando di sistema REC10MH

07 Comando Hi, Comfort T100

08 Terminali split idronici ( o ventilconvettori TIVANO)

09 Telecomando zona

10 Utenze acqua calda sanitaria

11 Impianto pannelli radianti

12 Filtro a maglia

2

2

3

4

4

2

E

E

R

P

M

O

L

A

O

P

C

I

D

E

I

A

I

L

A

D

L

A

R

U

C

M

O

T

E

I

A

N

E

M

D

L

A

A

S

C

A

B

A

A

D

L

A

U

Q

A

C

S

C

A

O

C

I

M

I

R

O

R

E

T

T

I

L

E

R

A

O

B

L

O

S

E

O

T

N

O

T

A

E

M

Z

I

A

D

L

L

A

R

A

C

S

T

N

E

I

R

C

O

T

N

E

M

A

N

O

I

Z

I

D

N

O

C

I

L

A

A

̀

T

I

N

N

I

M

U

R

E

T

I

T

N

E

O

T

N

M

E

L

A

I

P

P

M

O

M

I

'

D

C

77

I

M

E

I

D

I