Schemi d’impianto

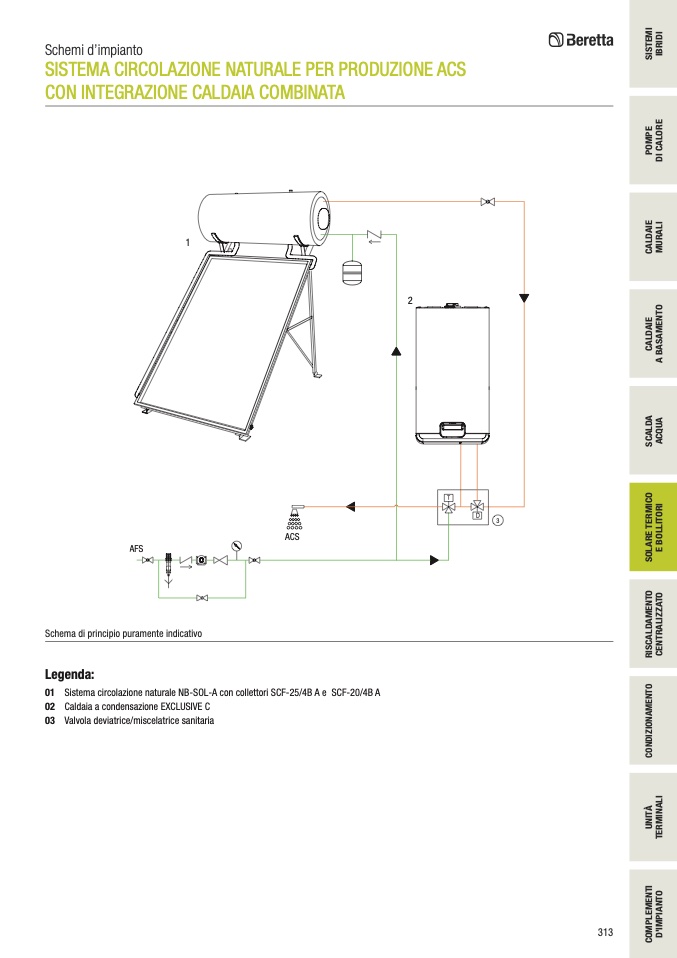
SISTEMA CIRCOLAZIONE NATURALE PER PRODUZIONE ACS

CON INTEGRAZIONE CALDAIA COMBINATA

1

2

AFS

ACS

3

Schema di principio puramente indicativo

Legenda:

01 Sistema circolazione naturale NB-SOL-A con collettori SCF-25/4B A e SCF-20/4B A

02 Caldaia a condensazione EXCLUSIVE C

03 Valvola deviatrice/miscelatrice sanitaria

313

S

I

S

T

E

M

I

I

B

R

I

D

I

P

O

M

P

E

D

I

C

A

L

O

R

E

C

A

L

D

A

I

E

M

U

R

A

L

I

C

A

L

D

A

I

E

A

B

A

S

A

M

E

N

T

O

S

C

A

L

D

A

A

C

Q

U

A

S

O

L

A

R

E

T

E

R

M

I

C

O

E

B

O

L

L

I

T

O

R

I

R

I

S

C

A

L

D

A

M

E

N

T

O

C

E

N

T

R

A

L

I

Z

Z

A

T

O

C

O

N

D

I

Z

I

O

N

A

M

E

N

T

O

U

N

I

T

A

̀

T

E

R

M

I

N

A

L

I

C

O

M

P

L

E

M

E

N

T

I

D

'

I

M

P

I

A

N

T

O