Schemi d’impianto

SISTEMA CON TOWER GREEN HE S E SOLARE TERMICO

T

S

I

R

B

I

S

2

TA

5

TA

6

1

E

E

R

P

M

O

L

A

O

P

C

I

D

E

I

A

I

L

A

D

L

A

R

U

C

M

O

T

E

I

A

N

E

M

D

L

A

A

S

C

A

B

A

A

D

L

A

U

Q

A

C

S

C

A

O

C

I

M

I

R

O

R

E

T

T

I

L

E

R

A

O

B

L

O

S

E

O

T

N

O

T

A

E

M

Z

I

A

D

L

L

A

R

A

C

S

T

N

E

I

R

C

O

T

N

E

M

A

N

O

I

Z

I

D

N

O

C

I

L

A

A

̀

T

I

N

N

I

M

U

R

E

T

I

T

N

E

O

T

N

M

E

L

A

I

P

P

M

O

M

I

'

D

C

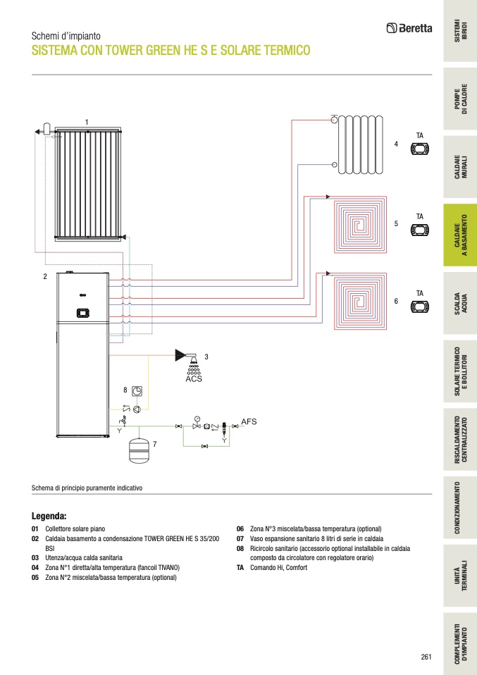
Schema di principio puramente indicativo

Legenda:

8

7

3

01 Collettore solare piano

06

Zona N°3 miscelata/bassa temperatura (optional)

02 Caldaia basamento a condensazione TOWER GREEN HE S 35/200

07

Vaso espansione sanitario 8 litri di serie in caldaia

BSI

08

Ricircolo sanitario (accessorio optional installabile in caldaia

03 Utenza/acqua calda sanitaria

04 Zona N°1 diretta/alta temperatura (fancoil TIVANO)

05 Zona N°2 miscelata/bassa temperatura (optional)

TA

composto da circolatore con regolatore orario)

Comando Hi, Comfort

TA

4

261

I

M

E

I

D

I