Pompe di calore

TOWER GREEN FE - POMPE DI CALORE SPLIT A BASAMENTO

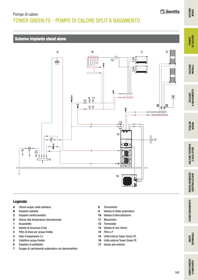
Schema impianto stand alone

A

B

C

D

12

9

10

8 11

7

6

2

13

14

15

16

M

M

17

3

5

4

1

Legenda:

A Utenze acqua calda sanitaria

B Impianto radiante

C Impianto ventilconvettori

D Utenze alta temperatura (termoarredo)

1 Acquedotto

8 Termometro

9 Valvola di sfiato automatico

10 Valvola d’intercettazione

11 Manometro

12 Termostato

13 Valvola di non ritorno

14 Filtro a Y

15 Unità interna Tower Green FE

16 Unità esterna Tower Green FE

17 Sonda aria esterna

2 Valvola di sicurezza 6 bar

3 Filtro di linea per acqua fredda

4 Vaso d’espansione 5 L

5 Collettore acqua fredda

6 Dosatore di polifosfati

7 Gruppo di caricamento automatico con disconnettore

163

S

I

S

T

E

M

I

I

B

R

I

D

I

P

O

M

P

E

D

I

C

A

L

O

R

E

C

A

L

D

A

I

E

M

U

R

A

L

I

C

A

L

D

A

I

E

A

B

A

S

A

M

E

N

T

O

S

C

A

L

D

A

A

C

Q

U

A

S

O

L

A

R

E

T

E

R

M

I

C

O

E

B

O

L

L

I

T

O

R

I

R

I

S

C

A

L

D

A

M

E

N

T

O

C

E

N

T

R

A

L

I

Z

Z

A

T

O

C

O

N

D

I

Z

I

O

N

A

M

E

N

T

O

U

N

I

T

A

̀

T

E

R

M

I

N

A

L

I

C

O

M

P

L

E

M

E

N

T

I

D

'

I

M

P

I

A

N

T

O