Istruzioni di montaggio microonde

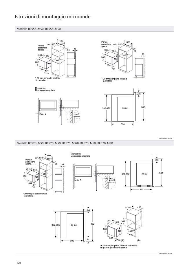
Modello BE555LMS0, BF555LMS0

600

Parete

min. 550

560+8

posteriore

aperta

369

554

382

* 20 mm per parte frontale

in metallo

Microonde

Montaggio angolare

min. 3

Parete

posteriore

aperta

369

382

594

*19

600

560+8

35

35

35

min. 550

554

360

380+2

35

2-0

382

380+2

360

594

*19

* 20 mm per parte frontale

in metallo

380-382

25 litri

min.3

550

Modello BE525LMS0, BF525LMS0, BF525LMW0, BF523LMS0, BE520LMR0

Dimensioni in mm

2-0

600

560+8

380+2

* 20 mm per parte frontale

in metallo

Microonde

Montaggio angolare

Parete

min. 550

posteriore

aperta

35

35

297

382

594

*19

554

346

380-382

≥ 300

382

20 litri

min. 3

min.3

297

594

362-365

6-3

382

14

554 362

+

3

346

19 (A)

550

≥ 16

(B)

20 litri

382

≥ 560

+

8

600

300

A: 20 mm per parte frontale in metallo

B: parete posteriore aperta

Dimensioni in mm

68