Istruzioni di montaggio microonde

Microonde

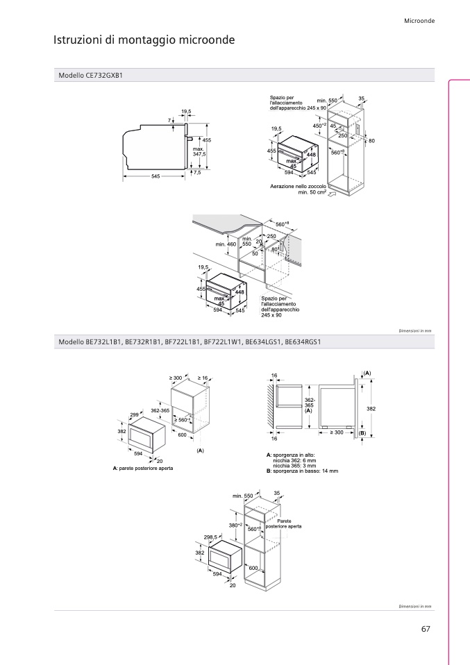
Modello CE732GXB1

Spazio per

l'allacciamento

dell'apparecchio 245 x 90

35

min. 550

450+2 45

19,5

7

545

19,5

455

Modello BE732L1B1, BE732R1B1, BF722L1B1, BF722L1W1, BE634LGS1, BE634RGS1

455

max.

347,5

7,5

19,5

455

594

250

560+8

545

80

max.

45

448

Aerazione nello zoccolo

min. 50 cm2

560+8

min.

20

250

80

Spazio per

l'allacciamento

dell'apparecchio

245 x 90

min. 460

448

594

545

50

550

max.

45

Dimensioni in mm

≥ 300

362-365

≥ 560

+8

≥ 16

16

16

A: sporgenza in alto:

nicchia 362: 6 mm

nicchia 365: 3 mm

(A)

382

362-

365

(A)

299

382

600

(A)

298,5

382

≥ 300

(B)

594

A: parete posteriore aperta

20

min. 550

380+2

560+8

B: sporgenza in basso: 14 mm

35

Parete

posteriore aperta

600

594

20

Dimensioni in mm

67