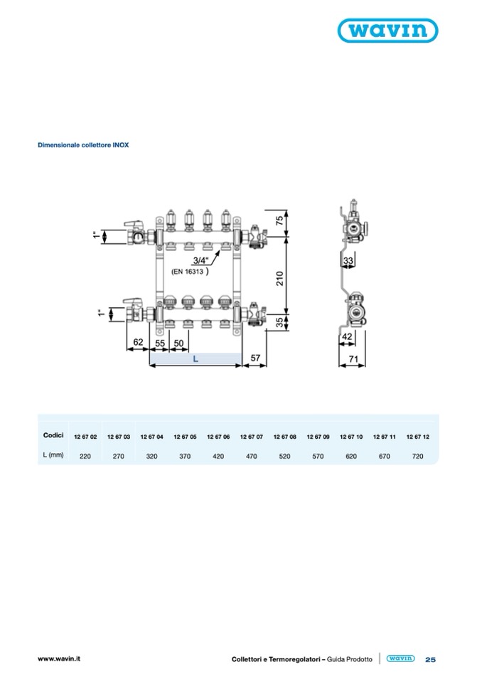
Dimensionale collettore INOX

62

3/4“

33

(EN 16313

)

42

L

57

71

55 50

Codici

L (mm)

12 67 02

220

12 67 03

270

12 67 04

320

12 67 05

370

12 67 06

420

12 67 07

12 67 08

12 67 09

12 67 10

470

520

570

620

12 67 11

670

12 67 12

720

www.wavin.it

Collettori e Termoregolatori – Guida Prodotto

25

3

5

2

1

0

7

5

1

1