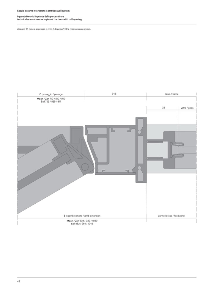
Spazio sistema interparete / partition wall system

ingombri tecnici in pianta della porta a tirare

technical encumbrances in plan of the door with pull opening

disegno 1:1 misure espresse in mm. / drawing 1:1 the measures are in mm.

C passaggio / passage

Moon / Zen 710 / 810 / 910

Sail753/835/917

64,5

telaio / frame

33

vetro / glass

48

B ingombro stipite / jamb dimension

Moon / Zen 839 / 939 / 1039

Sail 882 / 964 / 1046

pannello fisso / fixed panel