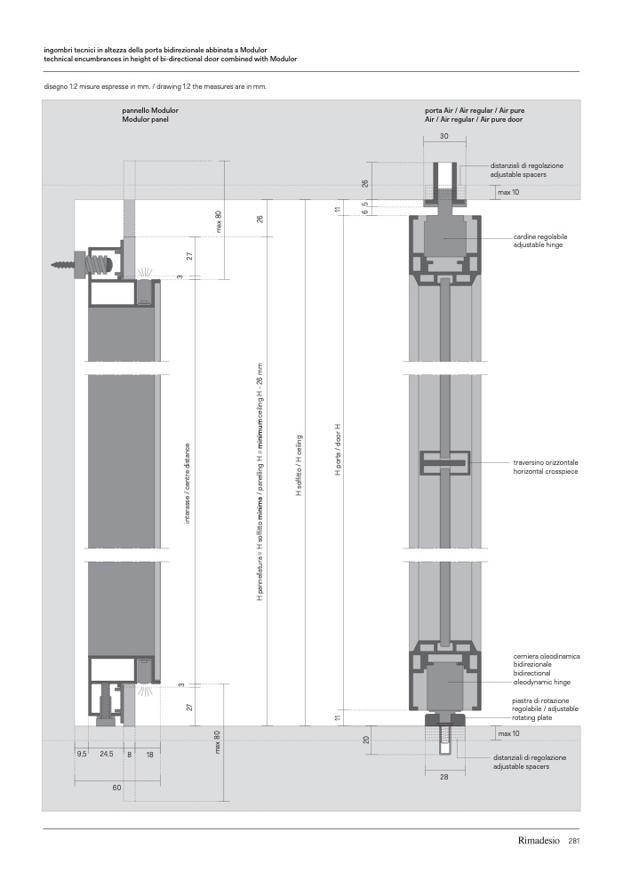
ingombri tecnici in altezza della porta bidirezionale abbinata a Modulor

technical encumbrances in height of bi-directional door combined with Modulor

disegno 1:2 misure espresse in mm. / drawing 1:2 the measures are in mm.

pannello Modulor

Modulor panel

porta Air / Air regular / Air pure

Air / Air regular / Air pure door

30

distanziali di regolazione

adjustable spacers

max 10

9,5

24,5

8

18

0

cardine regolabile

adjustable hinge

traversino orizzontale

horizontal crosspiece

cerniera oleodinamica

bidirezionale

bidirectional

oleodynamic hinge

piastra di rotazione

regolabile / adjustable

rotating plate

max 10

distanziali di regolazione

adjustable spacers

28

6

281

m

a

x

8

0

m

a

x

8

0

2

0

1

1

H

p

o

r

t

a

/

d

o

o

r

H

1

1

6

5

2

6

2

7

2

7

3

i

n

t

e

r

a

s

s

e

/

c

e

n

t

r

e

d

i

s

t

a

n

c

e

3

H

p

a

n

n

e

l

l

a

t

u

r

a

=

H

s

o

f

f

i

t

t

o

m

i

n

i

m

a

/

p

a

n

e

l

l

i

n

g

H

=

m

i

n

i

m

u

m

c

e

i

l

i

n

g

H

-

2

6

m

m

2

6

H

s

o

f

f

i

t

t

o

/

H

c

e

i

l

i

n

g